Appartement À vendre

4820 Dison
155 000 €
À vendre
Facebook
WhatsApp

    Venez découvrir ce magnifique loft spacieux et lumineux !
    Ses espaces ainsi que ses possibilités d’aménagement ne peuvent que vous séduire.

    Celui-ci se compose comme suit :
    – au rez-de-chaussée : accès commun aux escaliers
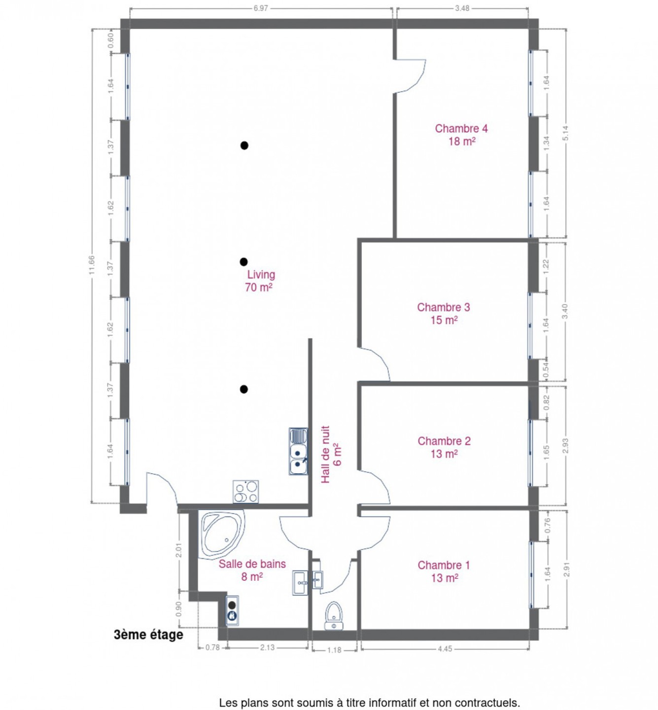
    – au 3ème étage : un superbe living de 70m², une cuisine équipée, 4 grandes chambres, un hall de nuit et d’une salle de bains

    Technique :

    – Châssis double vitrage PVC blanc
    – Compteurs électricité et gaz individuels
    – PEB B (20230508015360)
    – La copropriété n’est actuellement pas dotée d’un ascenseur

    Vous souhaitez de plus amples informations ? N’attendez plus et contactez nous !
    087/34.11.22 ou info@immo-tt.be

    Vous souhaitez visiter ce bien ?

    Nos coordonnées
    Immobilière Thonnard & Trinon
    Nos horaires

    Données générales

    • Prix 155 000 €
    • Ville Dison
    • Catégorie Appartement
    • Status de la transaction À vendre
    • Etat du batiment Bon état
    • Revenu cadastral 641 €

    Configurations

    • Nombre de chambres 4
    • Nombre de salles de bains 1
    • Parking Oui
    • Superficie totale 145
    • Superficie chambre 1 12,95
    • Superficie chambre 2 12,94
    • Superficie chambre 3 14,97
    • Superficie chambre 4 17,89

    Données énergétiques

    • Classe énergétique PEB
    • PEB No 20230508015360
    • E spec 109 kWh/m²/an
    • E totale 17514 kWh/an
    • Type de chauffage gaz (chau. centr.)

    Documents

    Localisation

    280 Rue Pisseroule 4820 Dison

    Vous souhaitez visiter ce bien ?

    Nos coordonnées
    Immobilière Thonnard & Trinon
    Nos horaires
    5619054_50495127.jpg

    Demandez une visite pour ce bien

    Vos coordonées
    Informations supplémentaires (non obligatoire)