Maison À vendre

4800 Verviers
340 000 €
À vendre
Facebook
WhatsApp

    Immeuble de rapport comprenant 4 appartements en ordre urbanistique.

    RDC:
    – un appartement avec hall (8m²), salon cuisine équipée (16m²), 1 chambre (12m²) et salle de douche avec WC, et buanderie (8m²).

    1er:
    un appartement avec entrée (7m²), 2 chambres (13 et 16m²), salle à manger avec cuisine semi équipée (17m²), salon (18m²), buanderie, salle de douche avec wc.

    2ème:
    un appartement rénové comprenant une entrée (7m²), salon (18m²), 2 chambres (13 et 19m²), cuisine semi équipée (17m²), salle de douche avec wc.

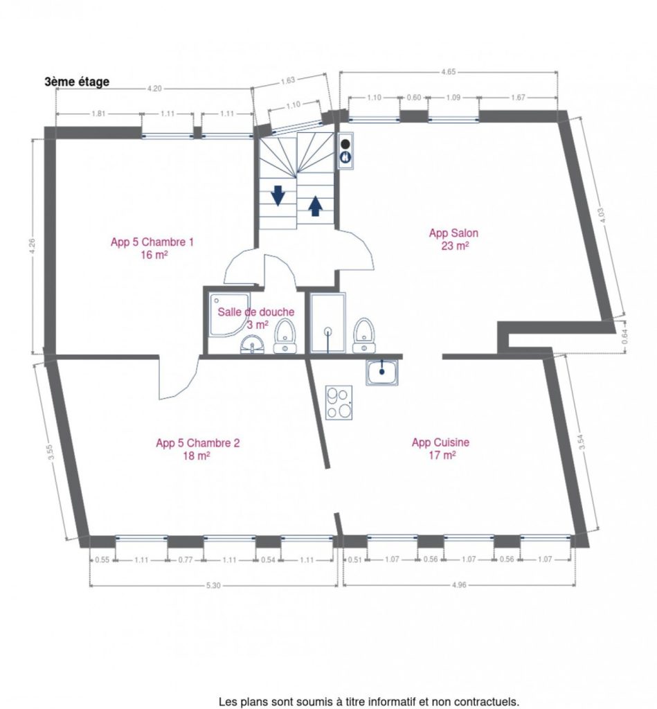
    3ème et 4ème, un appartement sur 2 niveaux:
    – 3ème: Salon (23m²), cuisine semi équipée (17m²), salle de douche , 2 chambres (16 et 18m²).
    – 4ème: salle de bain (13m²) et 3 chambres (14, 18 et 22m²).

    Compteurs électricité, gaz et eau individuels.
    Revenus locatifs : 2.650€/mois
    7 caves et 1 cour (commune).
    Revenu Cadastral : 1190€

    Vous souhaitez visiter ce bien ?

    Nos coordonnées
    Immobilière Thonnard & Trinon
    Nos horaires

    Données générales

    • Prix 340 000 €
    • Ville Verviers
    • Catégorie Maison
    • Status de la transaction À vendre
    • Etat du batiment À rafraîchir
    • Orientation du bâtiment est
    • Revenu cadastral 1 190 €

    Configurations

    • Nombre de chambres 11
    • Nombre de salles de bains 4
    • Cave Oui
    • Superficie totale 407
    • Superficie terrain 100
    • Superficie buandrie 2,28
    • Superficie chambre 1 16,40
    • Superficie chambre 2 12,88
    • Superficie chambre 3 13,95
    • Superficie chambre 4 17,98
    • Superficie chambre 5 22,53

    Données énergétiques

    • Classe énergétique PEB
    • PEB No 20240503000793
    • E spec 339 kWh/m²/an
    • E totale 49390 kWh/an
    • Emission de CO2 62 Kg/CO2/an
    • Type de chauffage gaz (chau. centr.)

    Documents

    Localisation

    1 Rue Fyon 4800 Verviers

    Vous souhaitez visiter ce bien ?

    Nos coordonnées
    Immobilière Thonnard & Trinon
    Nos horaires
    5894891_73869174.png

    Demandez une visite pour ce bien

    Vos coordonées
    Informations supplémentaires (non obligatoire)