Maison À vendre

4950 Robertville
570 000 €
Option
Facebook
WhatsApp

    GRANDE OPPORTUNITÉ À SAISIR! Immeuble de rapport comprenant 6 appartements tous loués dans le centre de Robertville.

    Composition:
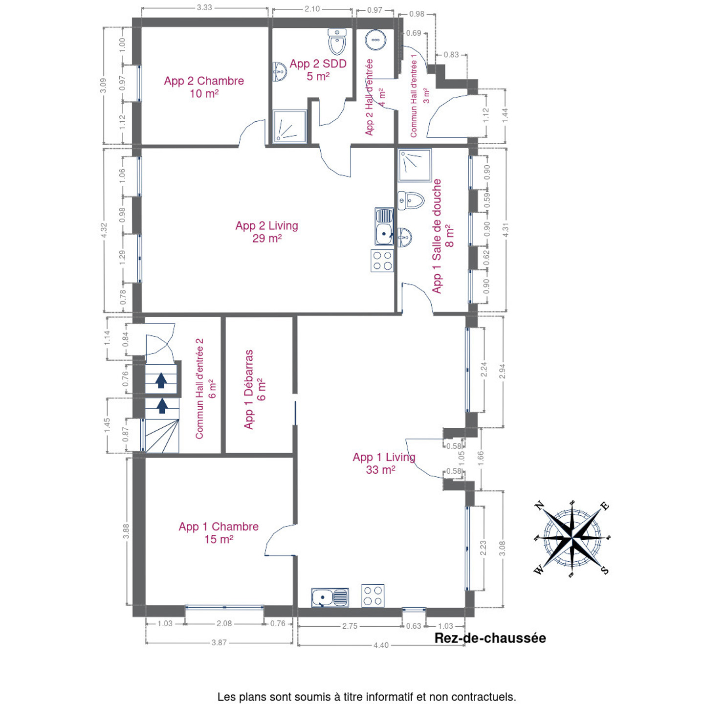
    – RDC -> Deux appartements une chambre avec entrée individuelle à l’avant du bâtiment.
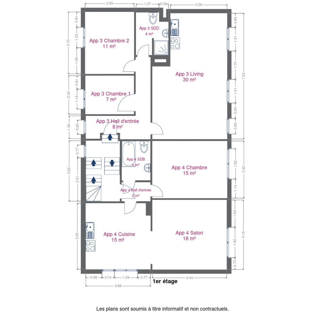
    – 1er étage -> Un appartement une chambre et un appartement deux chambres (entrée par l’arrière du bâtiment).
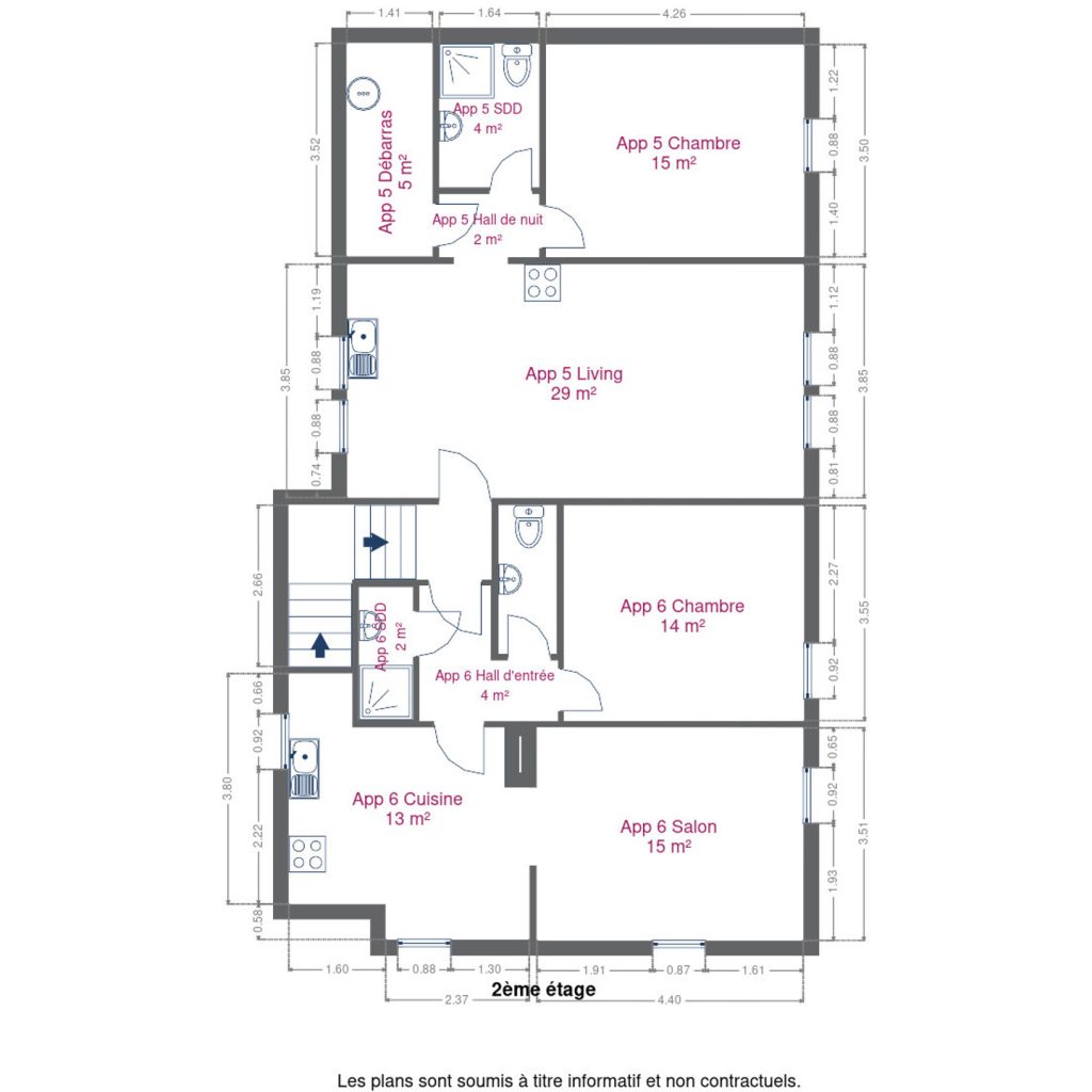
    – 2ème étage -> Deux appartements une chambre (entrée par l’arrière du bâtiment).
    – Caves au -1: cave commune reprenant les citernes à mazout (7000L au total), la chaudière ainsi que les compteurs et décompteurs (eau et électricité) + cave individuelle.

    Un boiler individuel par appartement.
    Eaux usées: tout à l’égout.

    Loyers (hors charges):
    – 49A: 390€
    – 49B: 350€
    – 49/1: 400€
    – 49/2: 535€
    – 49/3: 350€
    – 49/4: 320€

    Citerne à mazout commune, décompte une fois par an. Pas de syndic, gestion de la citerne à mazout et les décomptes via les propriétaires.
    PEB B (20250324029829), C (20250324030116), D (296 kwh/m²/an) et E (356kw/m²/an).

    Partiellement rénové entre 2002 et 2012 (certains châssis double vitrage en PVC de 2002 chaudière, couverture de toit + isolation de 16cm en 2002, façade arrière en ardoises + murs isolés à l’arrière de 10cm.)

    Informations complémentaires et visite sur simple demande.

    Vous souhaitez visiter ce bien ?

    Nos coordonnées
    Immobilière Thonnard & Trinon
    Nos horaires

    Données générales

    • Prix 570 000 €
    • Ville Robertville
    • Catégorie Maison
    • Status de la transaction Option
    • Etat du batiment Bon état
    • Orientation du bâtiment nord
    • Revenu cadastral 2 957 €

    Configurations

    • Nombre de chambres 7
    • Nombre de salles de bains 6
    • Cave Oui
    • Superficie totale 388
    • Superficie terrain 267
    • Superficie chambre 1 6,67
    • Superficie chambre 2 10,83

    Données énergétiques

    • Classe énergétique PEB
    • PEB No 20250324029829
    • E spec 165 kWh/m²/an
    • E totale 11395 kWh/an
    • Type de chauffage mazout (chauf. centr.)

    Documents

    Localisation

    49 Rue centrale 4950 Robertville

    Vous souhaitez visiter ce bien ?

    Nos coordonnées
    Immobilière Thonnard & Trinon
    Nos horaires
    6622273_64793683.jpg

    Demandez une visite pour ce bien

    Vos coordonées
    Informations supplémentaires (non obligatoire)