Maison À vendre

4860 Pepinster
400 000 €
Vendu
Facebook
WhatsApp

    Thonnard et Trinon vous présente à la vente cette superbe villa idéalement située sur les hauteurs de Pepinster !

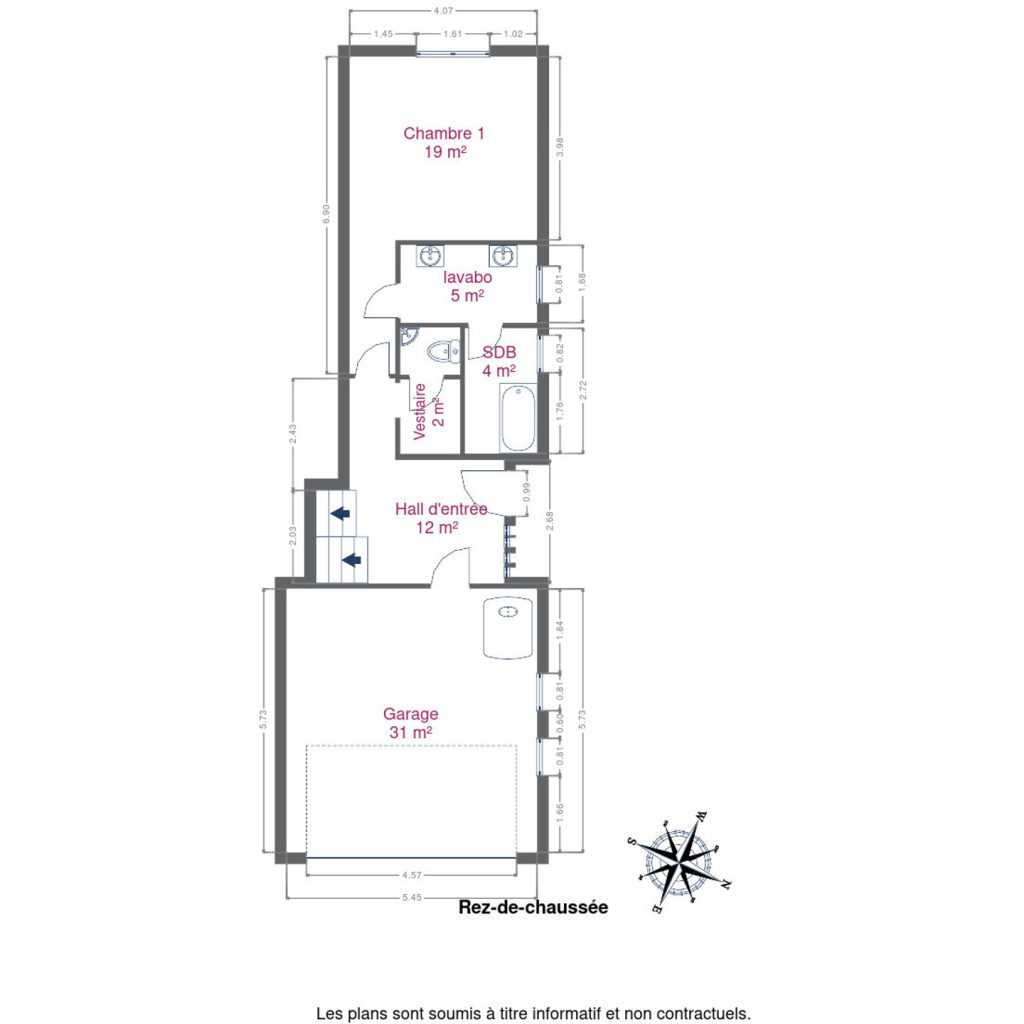
    Celle-ci se compose comme suit :

    – au sous sol : 4 chambres, un local chaufferie, une buanderie, une salle de douche
    – au rez-de-chaussée : une chambre, une salle de bains, un hall d’entrée, un grand garage de 31m²
    – au 1er étage : une pièce séjour de 61m² donnant accès sur l’extérieur, une cuisine de 16m² et une terrasse de 40m²

    Caractéristiques techniques :

    – Châssis double vitrage bois
    – Chauffe-eau ACV ( 150 litres )
    – Chauffage central mazout (1500L)
    – PEB D

    Vous souhaitez venir visiter ce bien ? N’attendez plus et contactez nous !
    087/34.11.22 ou info@immo-tt.be

    Vous souhaitez visiter ce bien ?

    Nos coordonnées
    Immobilière Thonnard & Trinon
    Nos horaires

    Données générales

    • Prix 400 000 €
    • Ville Pepinster
    • Catégorie Maison
    • Status de la transaction Vendu
    • Etat du batiment Bon état
    • Orientation du bâtiment ouest
    • Revenu cadastral 2 052 €

    Configurations

    • Nombre de chambres 5
    • Nombre de salles de bains 2
    • Jardin Oui
    • Parking Oui
    • Superficie totale 247
    • Superficie terrain 1.658
    • Superficie jardin 1.392
    • Superficie séjour 50,76
    • Superficie cuisine 15,49
    • Superficie buandrie 9,31
    • Superficie chambre 1 19,10
    • Superficie chambre 2 11,48
    • Superficie chambre 3 11,34
    • Superficie chambre 4 11,30
    • Superficie chambre 5 12

    Données énergétiques

    • Classe énergétique PEB
    • PEB No 202505180111061
    • E spec 322 kWh/m²/an
    • E totale 92614 kWh/an
    • Emission de CO2 80 Kg/CO2/an
    • Type de chauffage mazout (chauf. centr.)

    Documents

    Localisation

    9 Beau Site 4860 Pepinster

    Vous souhaitez visiter ce bien ?

    Nos coordonnées
    Immobilière Thonnard & Trinon
    Nos horaires
    6702390_66870298.jpg

    Demandez une visite pour ce bien

    Vos coordonées
    Informations supplémentaires (non obligatoire)