Maison À vendre

4800 Verviers
230 000 €
À vendre
Facebook
WhatsApp

    Thonnard et Trinon vous propose cette charmante maison familiale à vendre à Petit-Rechain – 4 chambres, jardin et sous-sol complet

    Située dans un quartier calme de Petit-Rechain, cette maison unifamiliale offre un cadre de vie agréable, idéal pour une famille.

    Le bien se compose comme suit :
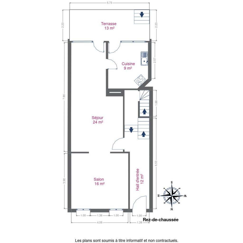
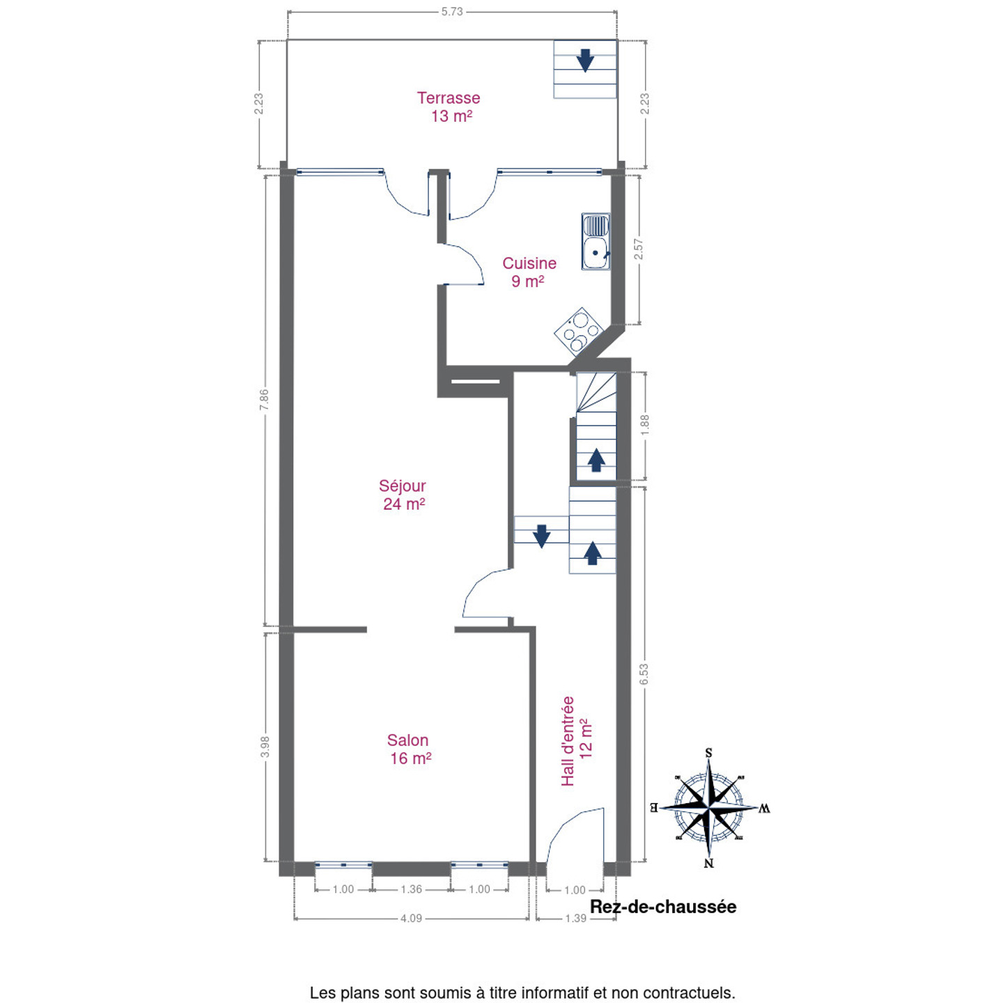
    Au rez-de-chaussée, vous trouverez un hall d’entrée desservant une agréable salle à manger, un salon lumineux, ainsi qu’une cuisine équipée offrant un accès direct au jardin.

    Au 1er étage, la maison dispose de deux belles chambres ainsi qu’une salle de bain fonctionnelle.

    Le deuxième étage abrite deux chambres supplémentaires.

    En sous-sol, vous bénéficiez d’un espace complet comprenant des caves, une buanderie et de nombreux rangements.

    L’extérieur se compose d’un jardin privatif.

    Caractéristiques techniques :

    Châssis en PVC double vitrage

    Toiture en bon état

    Chauffage central au gaz de ville

    Électricité conforme aux normes

    Un bien à visiter sans tarder !

    Vous souhaitez visiter ce bien ?

    Nos coordonnées
    Immobilière Thonnard & Trinon
    Nos horaires

    Données générales

    • Prix 230 000 €
    • Ville Verviers
    • Catégorie Maison
    • Status de la transaction À vendre
    • Etat du batiment Bon état
    • Date de construction 1918
    • Revenu cadastral 758 €

    Configurations

    • Nombre de chambres 4
    • Nombre de salles de bains 1
    • Jardin Oui
    • Cave Oui
    • Superficie totale 182
    • Superficie terrain 205
    • Superficie jardin 119
    • Superficie séjour 24,46
    • Superficie cuisine 9,17
    • Superficie buandrie 15,01
    • Superficie chambre 1 14,82
    • Superficie chambre 2 14,97
    • Superficie chambre 3 14,84
    • Superficie chambre 4 22,49

    Données énergétiques

    • Classe énergétique PEB
    • PEB No 20240308019473
    • E spec 435 kWh/m²/an
    • E totale 75729 kWh/an
    • Type de chauffage gaz (chau. centr.)

    Documents

    Localisation

    38 Rue Nicolas Arnold 4800 Verviers

    Vous souhaitez visiter ce bien ?

    Nos coordonnées
    Immobilière Thonnard & Trinon
    Nos horaires
    6961521_71079518.jpg

    Demandez une visite pour ce bien

    Vos coordonées
    Informations supplémentaires (non obligatoire)