Maison À vendre

4900 Spa
280 000 €
Option
Facebook
WhatsApp

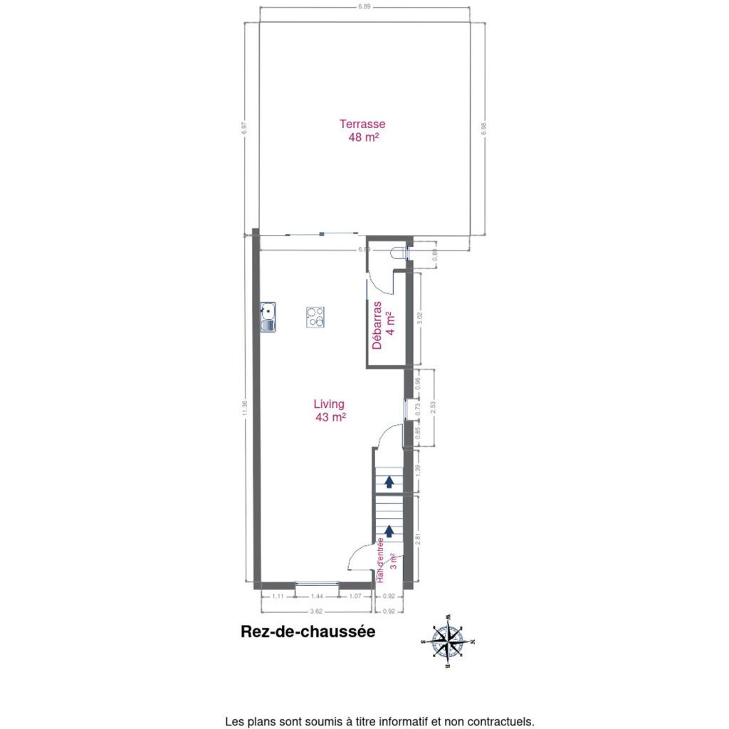
    Maison 3 façades entièrement rénovée – 107 m² habitables – prête à emménager ! Située dans un quartier calme et agréable, cette charmante maison 3 façades entièrement rénovée offre une surface habitable de 107 m² et ne nécessite aucun travaux. Il ne vous reste plus qu’à poser vos valises ! Au sous-sol, vous trouverez deux caves pratiques ainsi qu’une buanderie fonctionnelle. Le rez-de-chaussée se compose d’une belle pièce de vie lumineuse comprenant un salon, une salle à manger et une cuisine ouverte avec îlot central, le tout donnant directement accès à la terrasse et à l’extérieur. À l’étage, la maison propose deux chambres confortables ainsi qu’une salle de bain moderne. Caractéristiques techniques :

    • Châssis en PVC double vitrage
    • Chauffage central au gaz de ville avec chaudière à condensation
    • Électricité conforme
    • Toiture en excellent état
    • Raccordée aux égouts

    Une opportunité idéale pour un premier achat ou un investissement sans souci !

    Vous souhaitez visiter ce bien ?

    Nos coordonnées
    Immobilière Thonnard & Trinon
    Nos horaires

    Données générales

    • Prix 280 000 €
    • Référence 6914130
    • Ville Spa
    • Catégorie Maison
    • Status de la transaction Option
    • Etat du batiment Bon état
    • Orientation du bâtiment est
    • Revenu cadastral 356 €

    Configurations

    • Nombre de chambres 2
    • Nombre de salles de bains 1
    • Parking Oui
    • Cave Oui
    • Superficie totale 92
    • Superficie terrain 217
    • Superficie buandrie 13,67
    • Superficie chambre 1 8,22
    • Superficie chambre 2 8,22

    Données énergétiques

    • Classe énergétique PEB
    • PEB No 20240927009419
    • E spec 198 kWh/m²/an
    • E totale 20223 kWh/an
    • Emission de CO2 37 Kg/CO2/an
    • Type de chauffage gaz (chau. centr.)

    Documents

    Localisation

    50 Avenue Antoine Pottier 4900 Spa

    Vous souhaitez visiter ce bien ?

    Nos coordonnées
    Immobilière Thonnard & Trinon
    Nos horaires
    6990278_70204564.jpg

    Demandez une visite pour ce bien

    Vos coordonées
    Informations supplémentaires (non obligatoire)