Maison À vendre

4607 Dalhem
À partir de
120 000 €
Option
Facebook
WhatsApp

    Thonnard&Trinon vous propose cette jolie maison à rénover située dans le charmant village de Mortroux, cette maison offre un cadre de vie paisible, à proximité des grands axes et des commodités.

    Elle se compose au rez-de-chaussée d’un salon , d’une salle à manger,, d’un WC, d’une cuisine, d’une véranda , ainsi que d’un garage pouvant être réaménagé en pièce de vie ou en espace de rangement selon vos besoins.

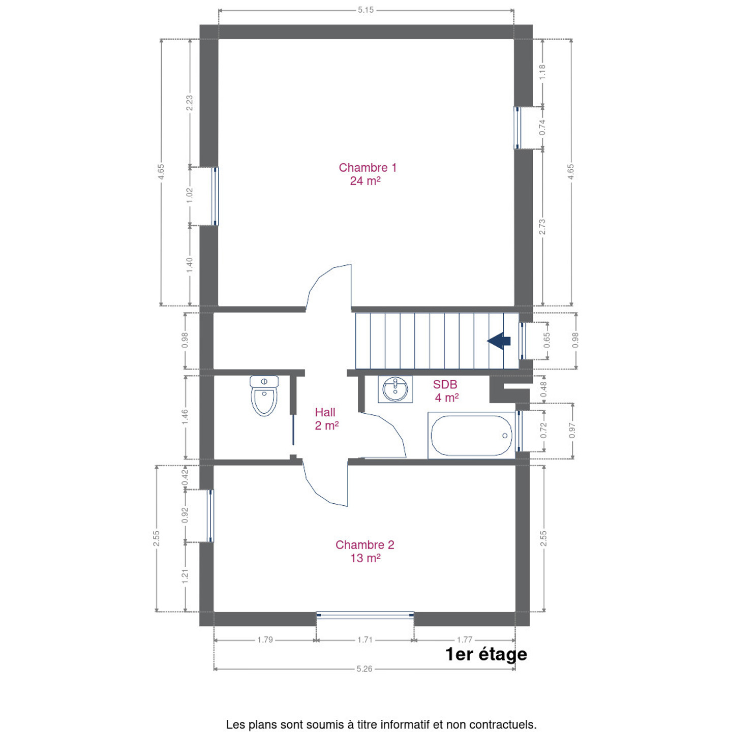
    À l’étage, vous trouverez deux chambres à coucher, une salle de bain et un WC.

    Le bien dispose d’un chauffage au mazout complété par un poêle à pellets, d’une installation électrique conforme, de châssis double vitrage et d’une toiture en bon état.

    L’extérieur comprend un agréable jardin, idéal pour profiter des beaux jours en toute tranquillité.

    💡 Atouts principaux :

    Électricité conforme

    Double vitrage

    Toiture en ordre

    Chauffage mazout + pellet ( à vérifier)

    Environnement calme et verdoyant

    Une belle opportunité pour un premier achat ou un couple à la recherche d’un cadre de vie serein !

    Vous souhaitez visiter ce bien ?

    Nos coordonnées
    Immobilière Thonnard & Trinon
    Nos horaires

    Données générales

    • Prix 120 000 €
    • Ville Dalhem
    • Catégorie Maison
    • Status de la transaction Option
    • Etat du batiment À rénover
    • Revenu cadastral 470 €

    Configurations

    • Nombre de chambres 2
    • Nombre de salles de bains 1
    • Jardin Oui
    • Superficie totale 102
    • Superficie terrain 235
    • Superficie jardin 136
    • Superficie séjour 25,24
    • Superficie cuisine 15,49
    • Superficie chambre 1 23,97
    • Superficie chambre 2 13,40

    Données énergétiques

    • Classe énergétique PEB
    • PEB No 20251020023435
    • E spec 466 kWh/m²/an
    • E totale 59065 kWh/an
    • Emission de CO2 115 Kg/CO2/an
    • Type de chauffage mazout (chauf. centr.)

    Documents

    Localisation

    2 Rue Davipont 4607 Dalhem

    Vous souhaitez visiter ce bien ?

    Nos coordonnées
    Immobilière Thonnard & Trinon
    Nos horaires
    7138559_72729669.jpg

    Demandez une visite pour ce bien

    Vos coordonées
    Informations supplémentaires (non obligatoire)