Appartement À vendre

4950 Waimes
125 000 €
Option
Facebook
WhatsApp

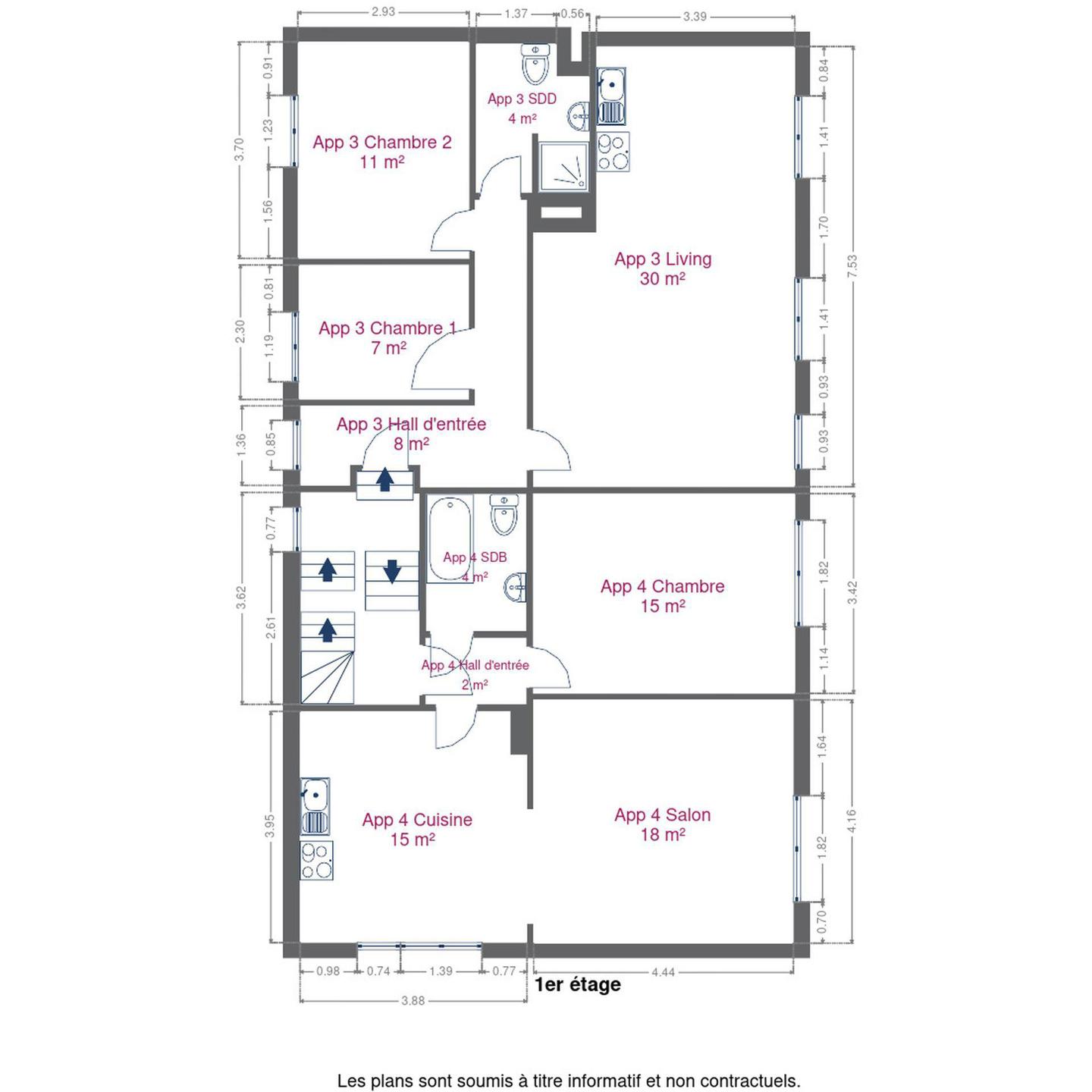
    À vendre dans le centre du village de Robertville: appartement 1 chambre + bureau et séjour spacieux.

    Situé au premier étage de cet immeuble partiellement rénové, ce lumineux appartement d’une chambre et un bureau offre un cadre de vie confortable.
    Actuellement loué.
    Composition: hall d’entrée commun
    Appartement: hall d’entrée, 1 chambre de 11m² et un bureau de 7m², un grand séjour de plus de 30m², cuisine et salle de douche.
    Techniques: compteurs individuels, chauffage central au mazout (chaudière commune avec décompteur), double vitrage, isolation toiture et murs arrière, tout à l’égout.

    PEB B : 20250324029982

    Informations complémentaires et visite via info@immo-tt.be ou au 080 78 50 37.

    Vous souhaitez visiter ce bien ?

    Nos coordonnées
    Immobilière Thonnard & Trinon
    Nos horaires

    Données générales

    • Prix 125 000 €
    • Référence 6823248
    • Ville Waimes
    • Catégorie Appartement
    • Status de la transaction Option
    • Etat du batiment À rafraîchir

    Configurations

    • Nombre de chambres 1
    • Nombre de salles de bains 1
    • Parking Oui
    • Cave Oui
    • Superficie totale 60
    • Superficie séjour 30,21
    • Superficie chambre 1 6,67
    • Superficie chambre 2 10,83

    Données énergétiques

    • Classe énergétique PEB
    • PEB No 20250324029982
    • E spec 152 kWh/m²/an
    • E totale 11060 kWh/an
    • Type de chauffage gaz (chau. centr.)

    Documents

    Localisation

    49 Rue Centrale 4950 Waimes

    Vous souhaitez visiter ce bien ?

    Nos coordonnées
    Immobilière Thonnard & Trinon
    Nos horaires
    7236457_73374519.png

    Demandez une visite pour ce bien

    Vos coordonées
    Informations supplémentaires (non obligatoire)