Appartement À vendre

4960 Malmedy
269 000 €
À vendre
Facebook
WhatsApp

    Superbe immeuble situé Place du Pont Neuf 16 à Malmedy avec six appartements entièrement rénovés.
    Les deux rez-de-chaussée sont déjà vendus!

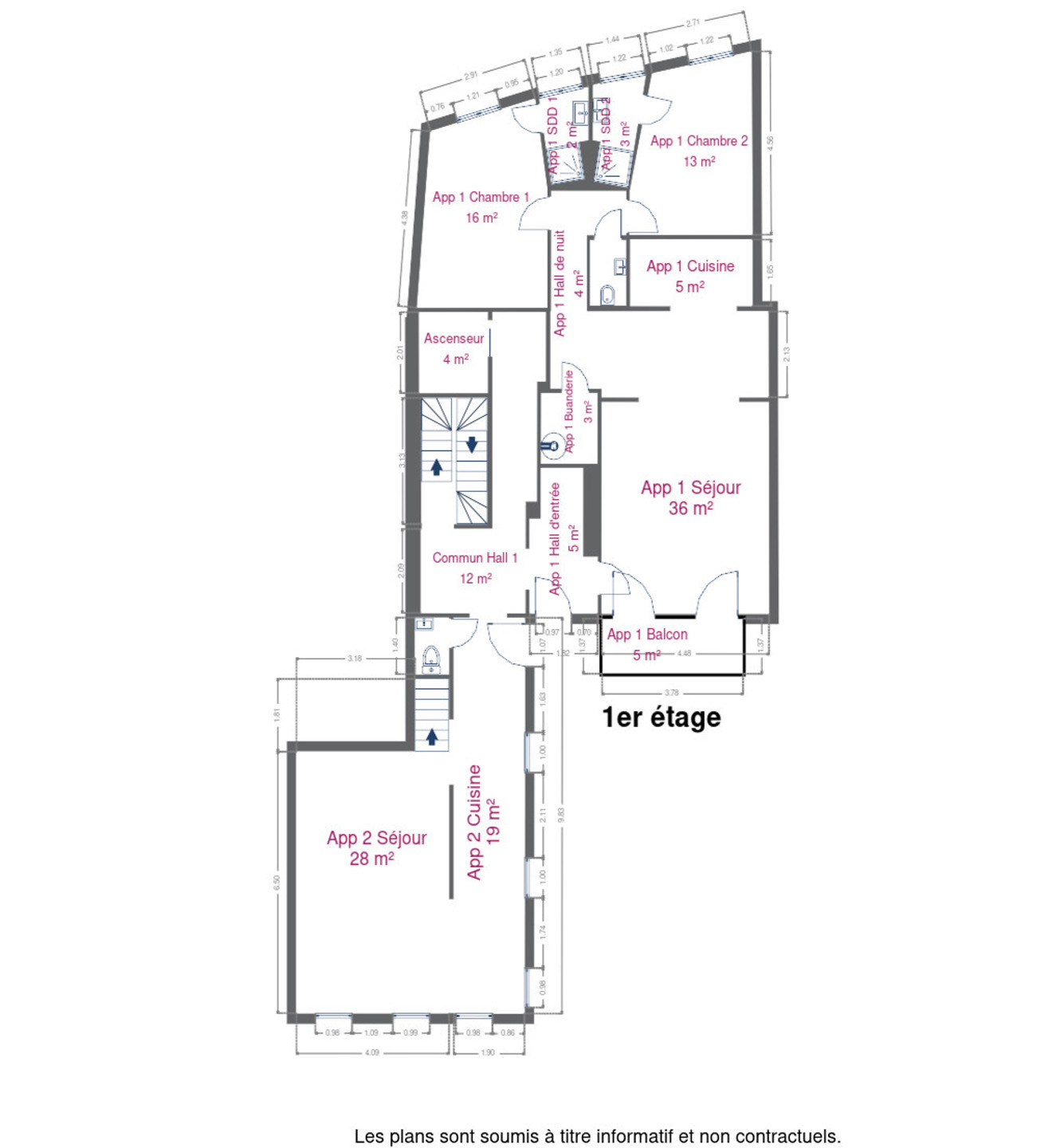
    – 1er étage: appartement de 93m² avec 2 chambres et 2 salles d’eau au prix de 269 000€ + 1er étage du Duplex de 92m² avec 2 chambres, une salle de bain et une douche au prix de 259 000€.
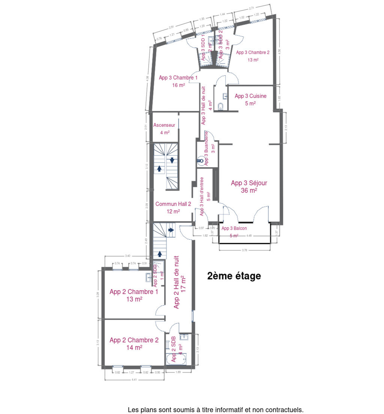
    – 2ème étage: appartement 2 chambres de 93m² au prix de 279 000€ + 2ème étage du Duplex.
    – 3ème et 4ème étage: Duplex de 118m² avec 3 chambres et 3 salles d’eau au prix de 329 000€.

    Cave privative et place de parking extérieur inclus.
    Ascenseur, isolation des façades, de la toiture avec 22cm de laine (couverture entièrement neuve) et des planchers. Châssis PVC double vitrage. Les plaques et portes d’entrée des appartements sont RF. Chaudière mazout à condensation commune avec intégrateurs individuels. Sèche serviette dans les salles d’eau. Compteurs d’eau et d’électricité séparés.
    Salle de bain/douche: entièrement équipée.
    Cuisine: à installer (à charge de l’acquéreur).
    Rapport PEB B
    Le raccordement général de l’immeuble est réalisé, l’acquéreur paiera au vendeur les frais de raccordement aux impétrants.
    Cahier des charges disponible sur demande.

    Prix: entre 269 000€ et 329 000€.
    Les prix s’entendent hors TVA.
    Intervention de l’acquéreur dans les frais de raccordement, les frais de géomètre et QP dans l’acte de base.

    Fin du chantier et livraison des appartements fin 2024.

    Plus d’informations via info@immo-tt.be ou au 080/78 50 37

    Vous souhaitez visiter ce bien ?

    Nos coordonnées
    Immobilière Thonnard & Trinon
    Nos horaires

    Données générales

    • Prix 269 000 €
    • Référence 6146872
    • Ville Malmedy
    • Catégorie Appartement
    • Status de la transaction À vendre
    • Etat du batiment Excellent état

    Configurations

    • Nombre de chambres 2
    • Nombre de salles de bains 2
    • Parking Oui
    • Cave Oui
    • Superficie totale 92

    Données énergétiques

    • Classe énergétique PEB
    • PEB No 20241021026451
    • E spec 167 kWh/m²/an
    • E totale 15419 kWh/an
    • Type de chauffage mazout (chauf. centr.)

    Documents

    Localisation

    16 Place du Pont Neuf 4960 Malmedy

    Vous souhaitez visiter ce bien ?

    Nos coordonnées
    Immobilière Thonnard & Trinon
    Nos horaires
    7236558_73376120.jpg

    Demandez une visite pour ce bien

    Vos coordonées
    Informations supplémentaires (non obligatoire)