Appartement À vendre

4960 Malmedy
269 000 €
Option
Facebook
WhatsApp

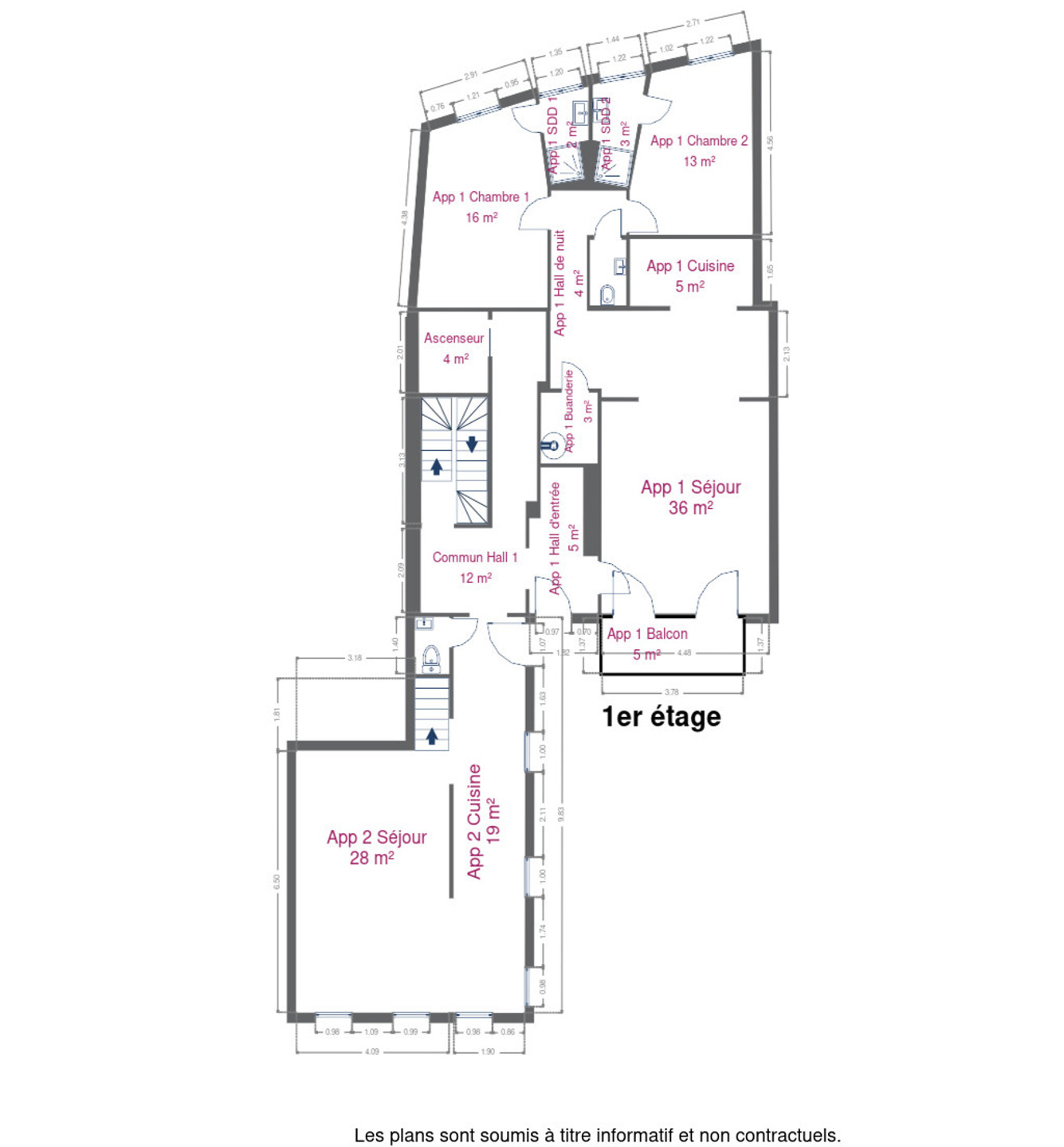
    Cet immeuble de six appartements est situé à 4960 Malmedy, Pont Neuf 16.
    Le projet consiste en la transformation d’un bâtiment en 6 appartements, avec une cave par appartement, balcon, une place de parking extérieur (sauf studio) et une cave compteur commune.

    – 1er étage: appartement 2 chambres de 93m² au prix de 269 000€

    Cave privative et place de parking extérieur inclus (sauf pour le studio: cave uniquement).
    Ascenseur, isolation des façades, de la toiture (couverture entièrement neuve) et des planchers. Chaudière mazout à condensation commune avec intégrateurs. Compteurs d’eau et d’électricité séparés.
    PEB : classe B (20241025008970)

    Les prix s’entendent hors TVA.
    Intervention de l’acquéreur dans les frais de raccordement, les frais de géomètre et QP dans l’acte de base.

    Plus d’informations via nora.lebichot@immo-tt.be ou au 080/78 50 37

    Vous souhaitez visiter ce bien ?

    Nos coordonnées
    Immobilière Thonnard & Trinon
    Nos horaires

    Données générales

    • Prix 269 000 €
    • Référence 6252729
    • Ville Malmedy
    • Catégorie Appartement
    • Status de la transaction Option
    • Etat du batiment Remis à neuf

    Configurations

    • Nombre de chambres 2
    • Nombre de salles de bains 2
    • Parking Oui
    • Cave Oui
    • Superficie totale 93
    • Superficie séjour 35,96
    • Superficie cuisine 5
    • Superficie chambre 1 15,50
    • Superficie chambre 2 12,96

    Données énergétiques

    • Classe énergétique PEB
    • PEB No 20241025008970
    • E spec 126 kWh/m²/an
    • E totale 14562 kWh/an
    • Type de chauffage gaz (chau. centr.)

    Documents

    Localisation

    16 Place du pont neuf 4960 Malmedy

    Vous souhaitez visiter ce bien ?

    Nos coordonnées
    Immobilière Thonnard & Trinon
    Nos horaires
    7236578_73376449.jpg

    Demandez une visite pour ce bien

    Vos coordonées
    Informations supplémentaires (non obligatoire)