Commerce À vendre

4950 Waimes
799 000 €
À vendre
Facebook
WhatsApp

    Au cœur des Hautes Fagnes, découvrez cet immeuble de rapport de caractère. Ancienne institution locale, ce bâtiment offre un potentiel exceptionnel pour les investisseurs, promoteurs ou exploitants Horeca, grâce à une configuration modulable et des rénovations de qualité.

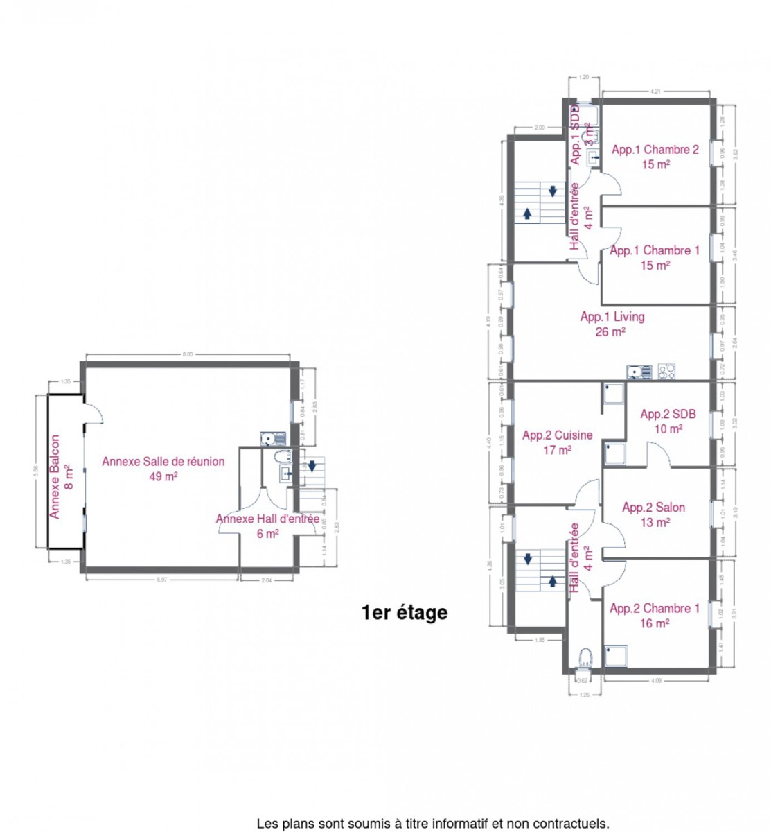
    Configuration & Espaces
    L’immeuble se compose de plusieurs unités offrant une flexibilité totale (résidentiel, gîtes, co-working) :

    Rez commercial : Ancien restaurant de renom avec cuisine professionnelle, sanitaires et une terrasse plein Ouest.

    1er étage : Appartement 2 chambres, entièrement rénové avec goût.

    2ème étage : Vaste plateau prêt à être transformé en deux duplex.

    Combles : Grenier de 98 m² aménageable pour un agrandissement supplémentaire.

    Le Chalet (Arrière) : Bâtiment indépendant proposant un appartement lumineux avec balcon, idéal pour une exploitation touristique.

    Atouts Techniques
    Le bien allie authenticité et modernité avec des prestations sérieuses :

    Conformité : Électricité aux normes (chalet et appartement rénové).

    Sécurité : Rapport de prévention pompier favorable.

    Équipements : Double vitrage (Bois/PVC), chauffage central mazout, grandes caves de stockage et local technique.

    L’avis de l’expert : Un projet rare aux portes de la réserve naturelle, idéal pour maximiser votre rentabilité via plusieurs unités de logement ou un projet mixte Horeca/chambres d’hôtes.

    📞 Contactez-nous pour obtenir le dossier complet ou organiser une visite.

    Vous souhaitez visiter ce bien ?

    Nos coordonnées
    Immobilière Thonnard & Trinon
    Nos horaires

    Données générales

    • Prix 799 000 €
    • Référence 5601996
    • Ville Waimes
    • Catégorie Commerce
    • Status de la transaction À vendre
    • Etat du batiment Bon état
    • Revenu cadastral 1 792 €

    Configurations

    • Nombre de chambres 8
    • Parking Oui
    • Cave Oui
    • Superficie totale 599
    • Superficie cuisine 16,66

    Données énergétiques

    • Classe énergétique PEB
    • PEB No 20221003016255
    • E spec 196 kWh/m²/an
    • E totale 119373 kWh/an
    • Emission de CO2 49 Kg/CO2/an
    • Type de chauffage mazout (chauf. centr.)

    Documents

    Localisation

    105 Route de botrange 4950 Waimes

    Vous souhaitez visiter ce bien ?

    Nos coordonnées
    Immobilière Thonnard & Trinon
    Nos horaires
    5601996_51327218.jpg

    Demandez une visite pour ce bien

    Vos coordonées
    Informations supplémentaires (non obligatoire)