Maison À vendre

4840 Welkenraedt
235 000 €
À vendre
Facebook
WhatsApp

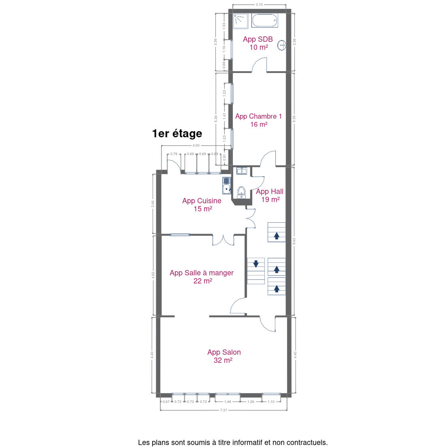
    Situé dans le centre de Welkenraedt, cet immeuble de rapport offre un beau potentiel d’aménagement avec une surface habitable de 349 m².

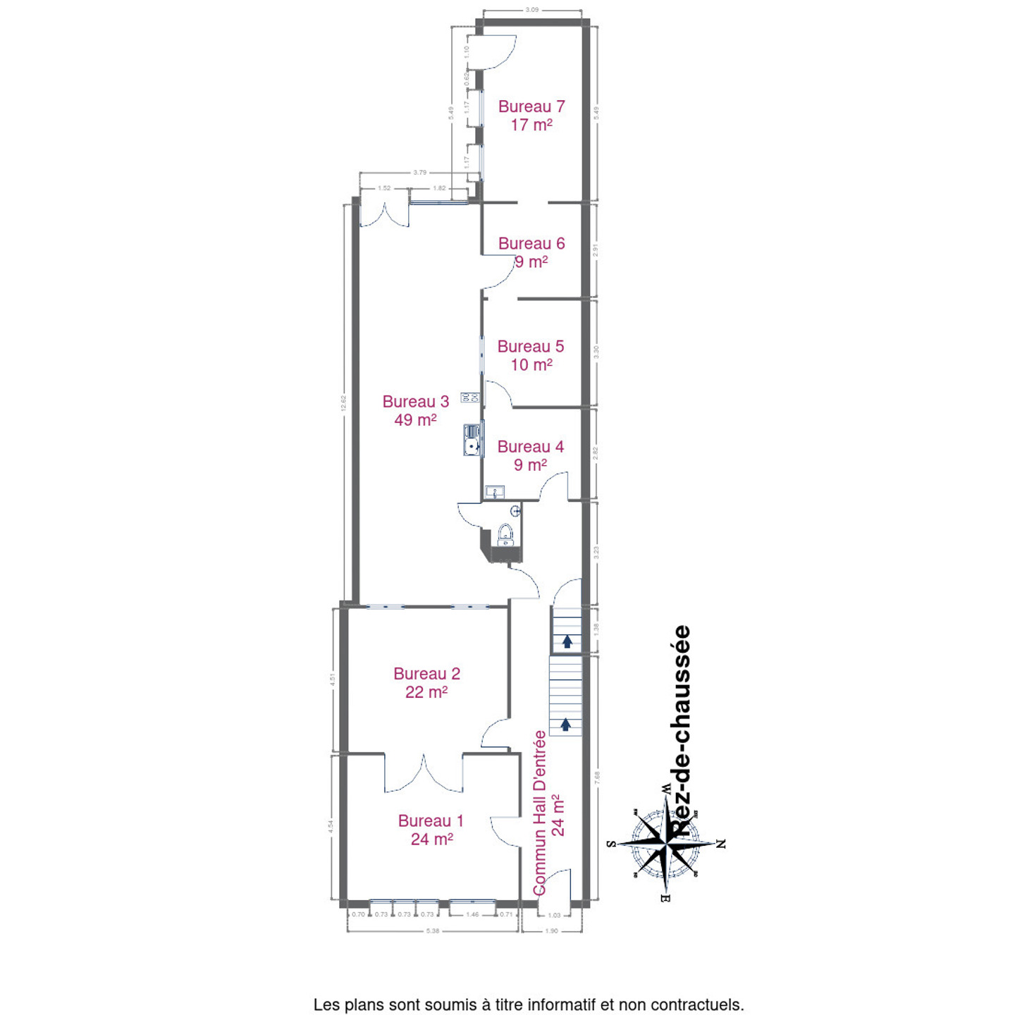
    Un permis d’urbanisme (initialement obtenu mais périmé) est en cours de renouvellement pour la création d’un rez-de-chaussée commercial et de deux appartements (possibilité d’un troisième logement, sous réserve d’acceptation).

    📐 Plans de l’architecte disponibles sur demande. Le bâtiment dispose d’un accès arrière et offre la possibilité d’aménager 3 emplacements de parking, un atout majeur en centre-ville.

    Idéal pour un investisseur ou un entrepreneur souhaitant créer un bel immeuble de rapport moyennant travaux et aménagements. Belle visibilité, nombreuses possibilités d’exploitation et situation stratégique proche des commerces, écoles et transports.

    Chauffage mazout avec citerne aérienne
    2 compteurs électrique
    1 compteur d’eau
    Electricité non conforme
    Châssis double et simple vitrage.

    📞 Plus d’infos et visites sur demande. Ne manquez pas cette opportunité à fort rendement potentiel !

    Vous souhaitez visiter ce bien ?

    Nos coordonnées
    Immobilière Thonnard & Trinon
    Nos horaires

    Données générales

    • Prix 235 000 €
    • Ville Welkenraedt
    • Catégorie Maison
    • Status de la transaction À vendre
    • Etat du batiment À rénover
    • Date de construction 1930
    • Orientation du bâtiment ouest
    • Revenu cadastral 1 324 €

    Configurations

    • Nombre de chambres 3
    • Nombre de salles de bains 1
    • Jardin Oui
    • Parking Oui
    • Cave Oui
    • Superficie totale 349
    • Superficie terrain 450
    • Superficie salle à manger 22,20
    • Superficie cuisine 15,40
    • Superficie chambre 1 16,43
    • Superficie chambre 2 31,94
    • Superficie chambre 3 22,41

    Données énergétiques

    • Classe énergétique PEB
    • PEB No 20250703031063
    • E spec 517 kWh/m²/an
    • E totale 91429 kWh/an
    • Type de chauffage mazout (chauf. centr.)

    Documents

    Localisation

    211 Rue Mitoyenne 4840 Welkenraedt

    Vous souhaitez visiter ce bien ?

    Nos coordonnées
    Immobilière Thonnard & Trinon
    Nos horaires
    6544971_71405113.jpg

    Demandez une visite pour ce bien

    Vos coordonées
    Informations supplémentaires (non obligatoire)