Appartement À vendre

4960 Malmedy
109 000 €
Vendu
Facebook
WhatsApp

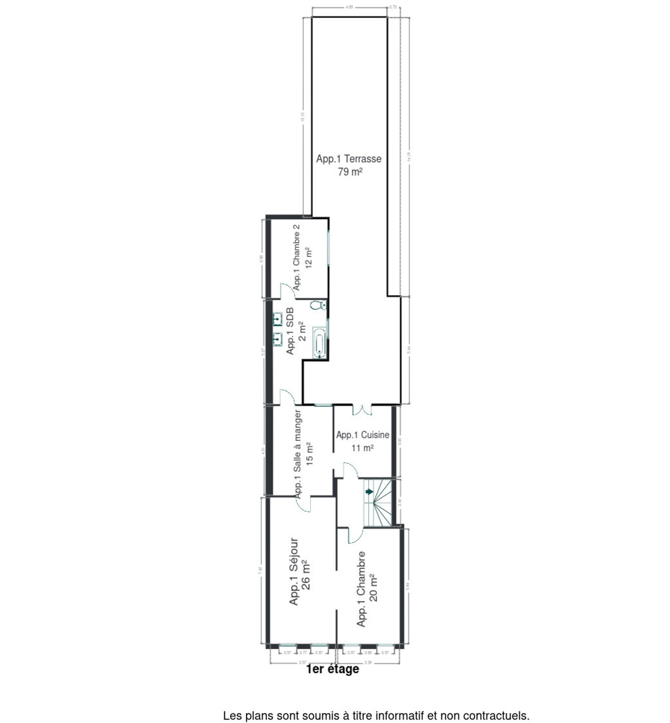
    Appartement 2 chambres avec une grande terrasse de 79 m² – Idéal investissement ou premier achat !
    Vous recherchez un bien avec un extérieur spacieux ? Cet appartement 2 chambres à rénover, situé au 1er étage d’un immeuble comprenant 3 appartements et un rez commercial, offre une terrasse privée de 79 m², un atout rare en ville !
    Actuellement loué à 500 €/mois hors charges, cet appartement est une excellente opportunité d’investissement ou un choix parfait pour un premier achat.
    Points forts :
    – Grande terrasse privative de 79 m², idéale pour aménager un espace détente, repas ou jardin urbain
    – 2 chambres spacieuses
    – Grand séjour lumineux
    – Proximité immédiate des commerces, transports et écoles

    Compteur électrique séparé (non conforme) et chauffage au mazout via une citerne commune (charges mensuelles de 180€ incluant chauffage et eau -> pas de compteur d’eau et chauffage individuel)

    Composition de l’appartement :
    Cuisine
    Salle à manger
    Grand séjour lumineux
    Salle de bain avec douche
    Deux chambres spacieuses
    Terrasse de 79 m² (exceptionnel en centre ville)

    Fait partie d’un ensemble d’une future copropriété (pas encore créée) avec un rdc commercial et deux autres appartements. Des frais seront à prévoir dans le futur concernant les communs (changement de la chaudière, toiture, façades avant et arrière).

    Un espace extérieur aussi vaste est une véritable rareté ! Ne laissez pas passer cette opportunité et contactez-nous dès maintenant pour plus d’informations ou pour organiser une visite.

    Vous souhaitez visiter ce bien ?

    Nos coordonnées
    Immobilière Thonnard & Trinon
    Nos horaires

    Données générales

    • Prix 109 000 €
    • Ville Malmedy
    • Catégorie Appartement
    • Status de la transaction Vendu
    • Etat du batiment À rénover
    • Revenu cadastral 577 €

    Configurations

    • Nombre de chambres 2
    • Nombre de salles de bains 1
    • Superficie totale 82,01
    • Superficie séjour 26,53
    • Superficie cuisine 11,18
    • Superficie chambre 1 19,80
    • Superficie chambre 2 12,23

    Données énergétiques

    • Classe énergétique PEB
    • PEB No 202310200001041
    • E spec 293 kWh/m²/an
    • E totale 32930 kWh/an
    • Type de chauffage mazout (chauf. centr.)

    Documents

    Localisation

    4 Place du Pont Neuf 4960 Malmedy

    Vous souhaitez visiter ce bien ?

    Nos coordonnées
    Immobilière Thonnard & Trinon
    Nos horaires
    6550686_62506666.jpg

    Demandez une visite pour ce bien

    Vos coordonées
    Informations supplémentaires (non obligatoire)