Maison À vendre

4800 Verviers
142 000 €
À vendre
Facebook
WhatsApp

    Maison à vendre à rénover sur Verviers / Stembert 

    Située dans un quartier calme, cette maison offre un grand potentiel d’aménagement.

    Agencement :

    Rez-de-chaussée : grand hall d’entrée, séjour lumineux, cuisine ouverte, deux chambres et une salle de bain à l’arrière de la maison.
    Garage : spacieux, pouvant accueillir deux voitures facilement à l’intérieur + une place de parking devant le garage. 
    Sous-sol : plusieurs caves offrant de nombreux espaces de rangement.
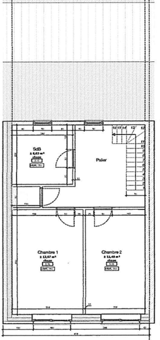
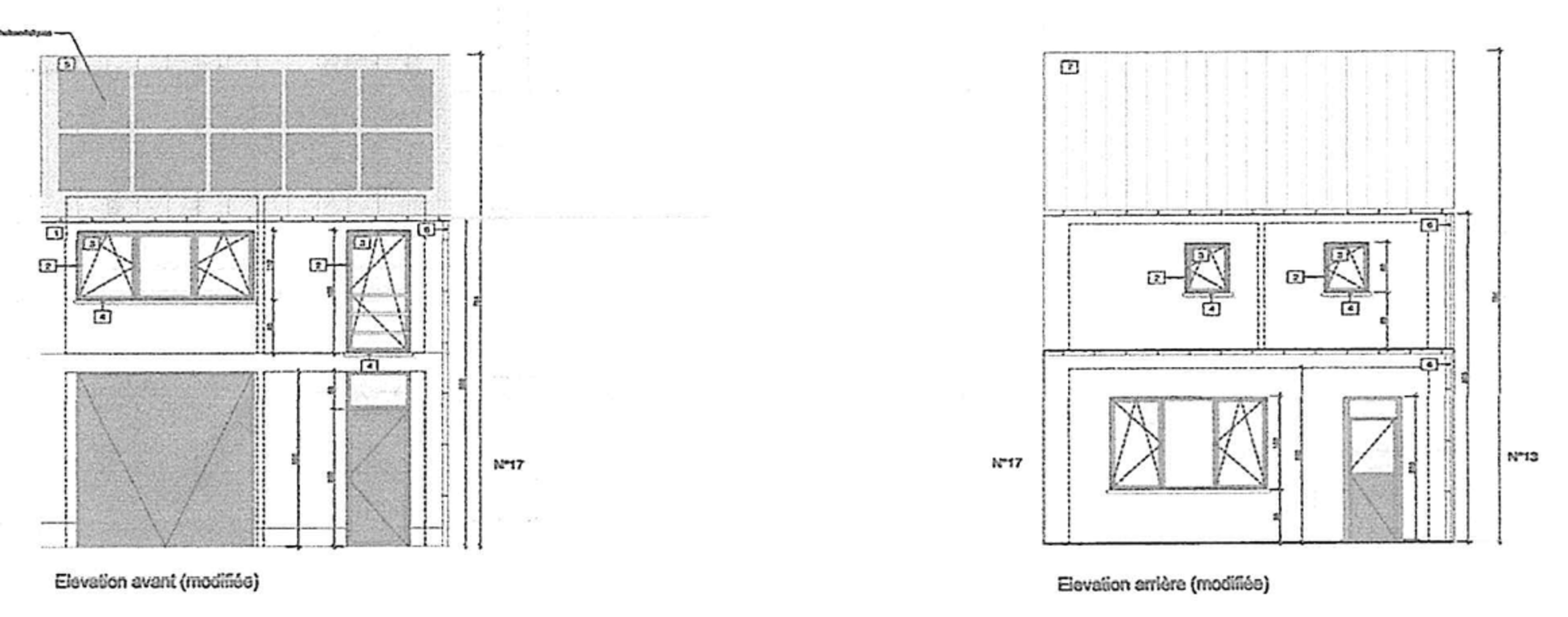
    Étage : à réaménager selon le permis d’urbanisme déjà obtenu.

    Extérieur : grand jardin agréable, idéal pour profiter du calme et des beaux jours.

    Équipements et confort :

    Électricité conforme
    Chauffage via pompe à chaleur
    Panneaux solaires (2,65 kW)
    Châssis double vitrage
    Toiture en bon état
    Relié aux égouts 
    PEB D

    À noter – travaux obligatoires :
    La maison nécessite des travaux de réhabilitation. Un permis d’urbanisme déjà accordé (valable encore 3 ans) impose la surélévation d’un étage, à réaliser dans un délai imparti après la vente. Les plans d’architecte sont établis et des devis peuvent être fournis sur demande.

    Cette maison représente une opportunité unique avec un vrai potentiel d’agrandissement.

    Vous souhaitez visiter ce bien ?

    Nos coordonnées
    Immobilière Thonnard & Trinon
    Nos horaires

    Données générales

    • Prix 142 000 €
    • Ville Verviers
    • Catégorie Maison
    • Status de la transaction À vendre
    • Etat du batiment Bon état
    • Date de construction 1930
    • Orientation du bâtiment nord-est
    • Revenu cadastral 406 €

    Configurations

    • Nombre de chambres 2
    • Nombre de salles de bains 1
    • Jardin Oui
    • Cave Oui
    • Superficie totale 118
    • Superficie terrain 210
    • Superficie jardin 90
    • Superficie séjour 23
    • Superficie chambre 1 10
    • Superficie chambre 2 8

    Données énergétiques

    • Classe énergétique PEB
    • PEB No 20250619015886
    • E spec 282 kWh/m²/an
    • E totale 33330 kWh/an
    • Emission de CO2 73 Kg/CO2/an
    • Type de chauffage pompe à chaleur

    Documents

    Localisation

    15 Avenue Reine Astrid 4800 Verviers

    Vous souhaitez visiter ce bien ?

    Nos coordonnées
    Immobilière Thonnard & Trinon
    Nos horaires
    6793762_76685656.jpg

    Demandez une visite pour ce bien

    Vos coordonées
    Informations supplémentaires (non obligatoire)