Maison À vendre

4800 Verviers
165 000 €
À vendre
Facebook
WhatsApp

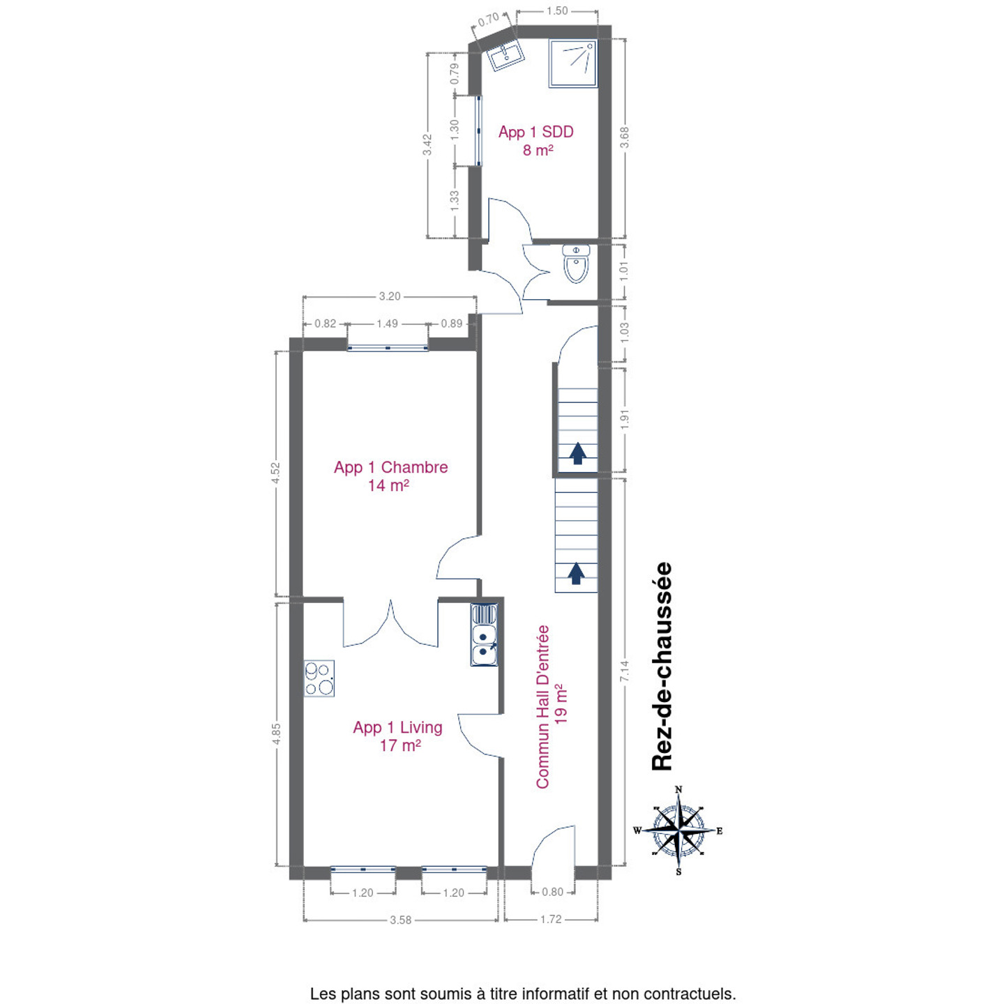
    Immeuble de rapport à vendre – entièrement en ordre urbanistique pour deux logements !
    Idéal pour investisseur : immeuble parfaitement conforme, composé de deux unités d’habitation reconnues.

    Caractéristiques techniques :

    – 6 chambres
    – Châssis bois et PVC double vitrage
    – Tous les compteurs sont individuels
    – Chauffage central gaz de ville
    – Immeuble relié aux égouts
    – Revenu cadastral : 694€
    – PEB E : (20251026007380)
    – Electricité conforme
    – RDC actuellement loué 420€/mois

    Vous souhaitez de plus amples informations ? N’attendez plus et contactez nous !
    087/34.11.22 ou info@immo-tt.be

    Vous souhaitez visiter ce bien ?

    Nos coordonnées
    Immobilière Thonnard & Trinon
    Nos horaires

    Données générales

    • Prix 165 000 €
    • Ville Verviers
    • Catégorie Maison
    • Status de la transaction À vendre
    • Etat du batiment À rafraîchir
    • Date de construction 1899
    • Orientation du bâtiment sud-ouest
    • Revenu cadastral 694 €

    Configurations

    • Nombre de chambres 6
    • Nombre de salles de bains 1
    • Cave Oui
    • Superficie totale 168
    • Superficie séjour 15,63
    • Superficie chambre 1 14,44
    • Superficie chambre 2 9,51
    • Superficie chambre 3 12,63
    • Superficie chambre 4 13,94

    Données énergétiques

    • Classe énergétique PEB
    • PEB No 20251026007380
    • E spec 351 kWh/m²/an
    • E totale 17722 kWh/an
    • Emission de CO2 67 Kg/CO2/an
    • Type de chauffage gaz

    Documents

    Localisation

    9 Rue des Martyrs 4800 Verviers

    Vous souhaitez visiter ce bien ?

    Nos coordonnées
    Immobilière Thonnard & Trinon
    Nos horaires
    7010619_73857671.jpg

    Demandez une visite pour ce bien

    Vos coordonées
    Informations supplémentaires (non obligatoire)