Appartement À vendre

4800 Verviers
115 000 €
À vendre
Facebook
WhatsApp

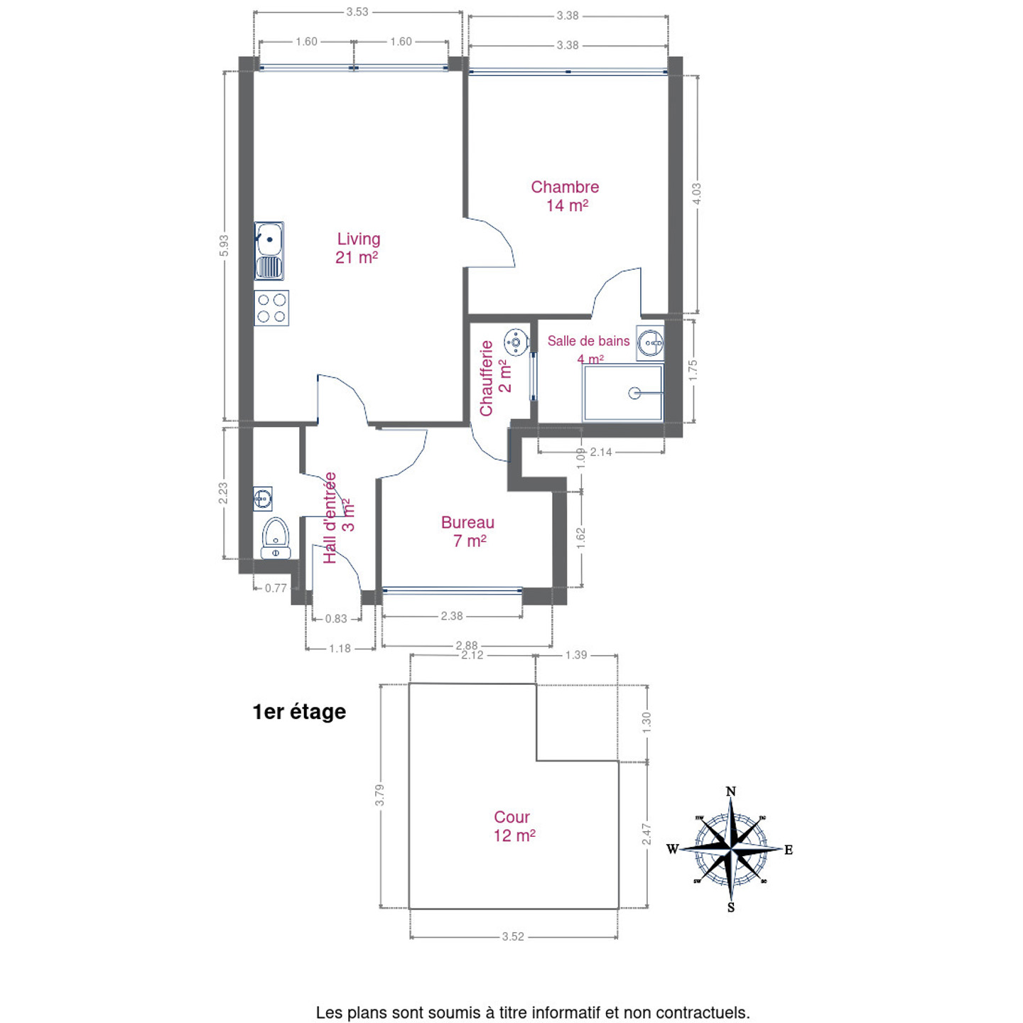
    Thonnard et Trinon vous propose ce bel appartement situé au 1er étage d’un immeuble avec ascenseur.

    A proximité immédiate de toutes les commodités (commerces, transports, écoles, services). Il se compose d’une cuisine ouverte sur le séjour, offrant un espace de vie convivial et lumineux, d’une chambre, d’un bureau (ou d’une deuxième petite chambre), d’une salle de bain, ainsi que d’un WC séparé.
    Une cave privative complète le bien. À l’arrière, vous profiterez d’une cour privative de 12 m², orientée sud, pour profiter des beaux jours.

    Aspects techniques :
    Double vitrage
    Chauffage collectif au gaz de ville avec calorimètre
    Compteur électrique individuel intelligent
    Parlophone
    Raccordement aux égouts
    PEB : D
    Contrôle électrique en cours
    Charges : 150€ pour le chauffage, l’eau et les communs.

    Un appartement fonctionnel et bien situé, idéal pour un premier achat ou un investissement !

    Vous souhaitez visiter ce bien ?

    Nos coordonnées
    Immobilière Thonnard & Trinon
    Nos horaires

    Données générales

    • Prix 115 000 €
    • Ville Verviers
    • Catégorie Appartement
    • Status de la transaction À vendre
    • Etat du batiment Bon état
    • Revenu cadastral 684 €

    Configurations

    • Nombre de chambres 2
    • Nombre de salles de bains 1
    • Cave Oui
    • Superficie totale 50
    • Superficie chambre 1 13,64
    • Superficie chambre 2 7

    Données énergétiques

    • Classe énergétique PEB
    • PEB No 20161219017556
    • E spec 261 kWh/m²/an
    • E totale 16065 kWh/an
    • Emission de CO2 48 Kg/CO2/an
    • Type de chauffage gaz

    Documents

    Localisation

    81 Rue du Palais 4800 Verviers

    Vous souhaitez visiter ce bien ?

    Nos coordonnées
    Immobilière Thonnard & Trinon
    Nos horaires
    7145002_76695290.jpg

    Demandez une visite pour ce bien

    Vos coordonées
    Informations supplémentaires (non obligatoire)