Industriel À vendre

4970 Stavelot
475 000 €
À vendre
Facebook
WhatsApp

    Thonnard & Trinon a le plaisir de vous présenter à la vente ce spacieux hall industriel situé dans le dynamique zoning de Stavelot, idéal pour développer ou étendre votre activité professionnelle.

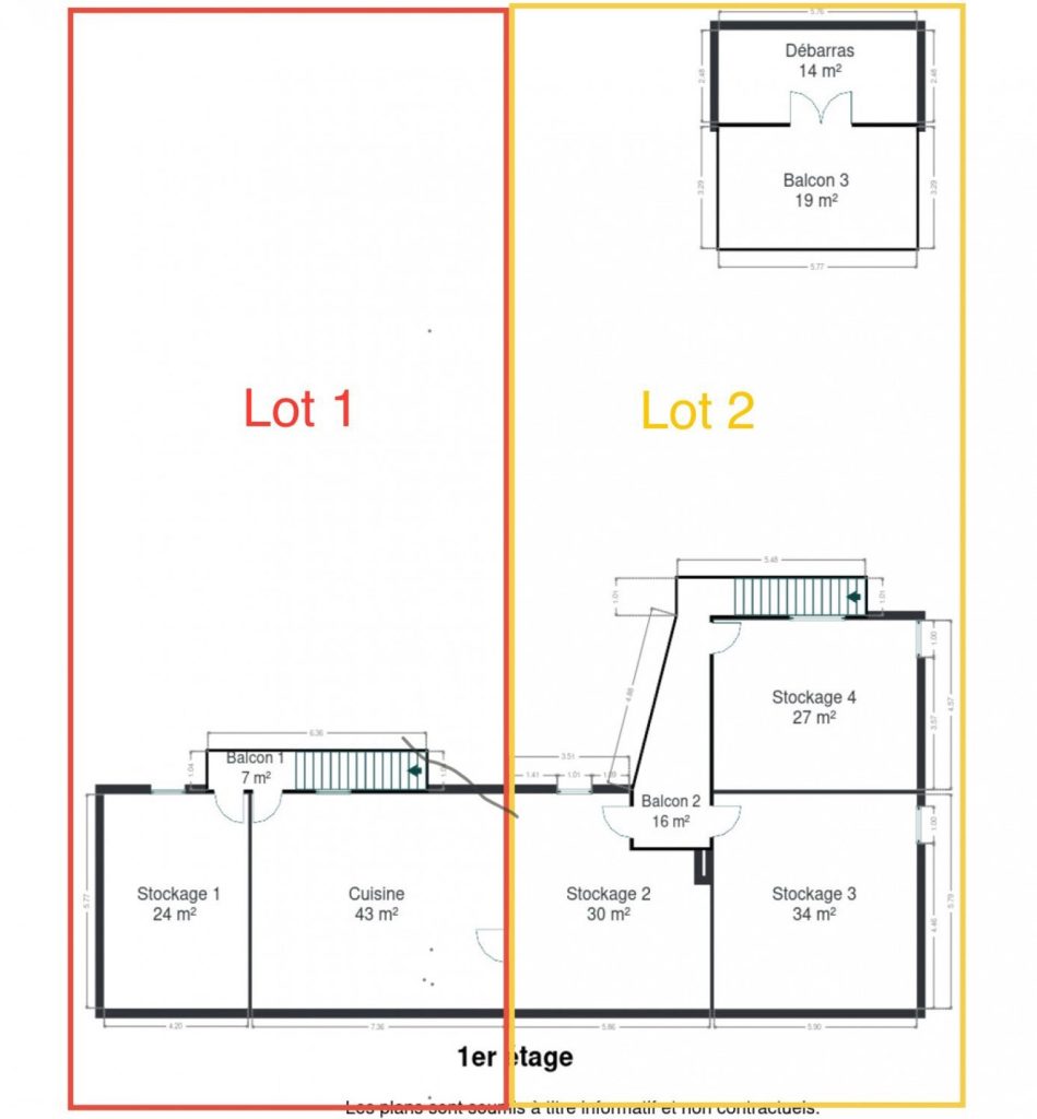
    Ce bien de qualité est désormais disponible à la vente en deux lots séparés, offrant ainsi plusieurs possibilités d’acquisition selon vos besoins.

    Le batiment comprend :

    Réception accueillante : Un espace professionnel soigné pour recevoir vos clients et partenaires.

    Bureau fonctionnel : Un environnement de travail calme et bien agencé.

    Cuisine équipée : Parfaite pour les pauses et repas de votre équipe.

    Grand atelier : Un vaste espace pour vos activités industrielles ou artisanales.

    Vestiaires et sanitaires : Pour le confort optimal de vos collaborateurs.

    Salles de douche : Deux salles de douche pratiques.

    Espaces de stockage : Halls dédiés pour vos besoins logistiques.

    👉 Possibilité d’acquérir l’ensemble du bâtiment, selon votre projet.

    📞 Intéressé(e) ? Contactez-nous sans tarder pour recevoir plus d’informations ou organiser une visite.

    Vous souhaitez visiter ce bien ?

    Nos coordonnées
    Immobilière Thonnard & Trinon
    Nos horaires

    Données générales

    • Prix 475 000 €
    • Ville Stavelot
    • Catégorie Industriel
    • Status de la transaction À vendre
    • Etat du batiment Bon état
    • Revenu cadastral 0 €

    Configurations

    • Parking Oui
    • Superficie totale 650

    Données énergétiques

    • Classe énergétique PEB

    Documents

    Localisation

    8 Rue Saint-Laurent 4970 Stavelot

    Vous souhaitez visiter ce bien ?

    Nos coordonnées
    Immobilière Thonnard & Trinon
    Nos horaires
    7146924_72198198.jpg

    Demandez une visite pour ce bien

    Vos coordonées
    Informations supplémentaires (non obligatoire)