Maison À vendre

4800 Verviers
245 000 €
À vendre
Facebook
WhatsApp

    Thonnard & Trinon vous propose cette spacieuse maison située à Verviers.

    Bénéficiant de beaux volumes et d’une configuration modulable, ce bien est actuellement reconnu en ordre urbanistique comme maison unifamiliale, idéale pour une grande famille.
    Il offre toutefois un potentiel intéressant pour la création de deux logements distincts, sous réserve de l’obtention d’un permis d’urbanisme.

    Le bien se compose comme suit :

    au sous-sol : 6 caves pour une superficie totale d’environ 67 m², idéales pour le rangement.
    au rez-de-chaussée : 1 chambre (13 m²), une salle de douche (5 m²), une salle à manger (17 m²), un salon (17 m²), une cuisine (11 m²)
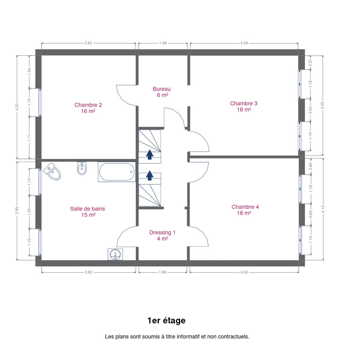
    au 1er étage : chambre 2 (16 m²), chambre 3 (18 m²), chambre 4 (18 m²), un bureau (6 m²), un dressing (4 m²), une salle de bain (15 m²)
    au 2ème étage : chambre 5 (16 m²), chambre 6 (15 m²), une cuisine (18 m²), un séjour (18 m²), une salle de douche (6 m²) et un dressing (4 m²)
    au 3ème étage : 6 greniers (de 4 m² à 18 m²), offrant un beau potentiel d’aménagement supplémentaire.

    Caractéristiques techniques :

    Chauffage central au gaz de ville (radiateurs)
    Châssis bois et PVC double vitrage
    Deux chaudières Vaillant
    Bâtiment relié aux égouts

    Vous souhaitez venir visiter ce bien ? N’attendez plus et contactez-nous !
    087/34.11.22 ou info@immo-tt.be

    Vous souhaitez visiter ce bien ?

    Nos coordonnées
    Immobilière Thonnard & Trinon
    Nos horaires

    Données générales

    • Prix 245 000 €
    • Ville Verviers
    • Catégorie Maison
    • Status de la transaction À vendre
    • Etat du batiment À rénover
    • Orientation du bâtiment ouest
    • Revenu cadastral 880 €

    Configurations

    • Nombre de chambres 6
    • Nombre de salles de bains 1
    • Cave Oui
    • Superficie totale 267
    • Superficie terrain 200
    • Superficie séjour 18,28
    • Superficie salle à manger 17,13
    • Superficie cuisine 11,38
    • Superficie chambre 1 12,65
    • Superficie chambre 2 16,04
    • Superficie chambre 3 17,77
    • Superficie chambre 4 18,28
    • Superficie chambre 5 16,04

    Données énergétiques

    • Classe énergétique PEB
    • PEB No 20250926016297
    • E spec 291 kWh/m²/an
    • E totale 111674 kWh/an
    • Emission de CO2 53 Kg/CO2/an
    • Type de chauffage gaz

    Documents

    Localisation

    216 Boulevard des Gérardchamps 4800 Verviers

    Vous souhaitez visiter ce bien ?

    Nos coordonnées
    Immobilière Thonnard & Trinon
    Nos horaires
    7204214_76682827.jpg

    Demandez une visite pour ce bien

    Vos coordonées
    Informations supplémentaires (non obligatoire)