Maison À vendre

4834 Goé
198 000 €
Vendu
Facebook
WhatsApp

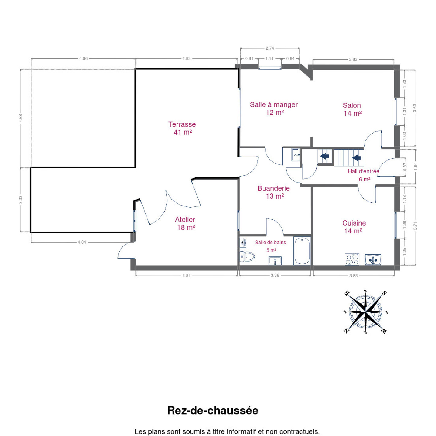
    Thonnard et Trinon vous propose cette charmante maison 3 façades à vendre: Située à Goé dans un environnement agréable, cette maison offre de beaux volumes et un excellent potentiel.

    Elle dispose d’une belle entrée permettant le stationnement d’un véhicule, un véritable atout au quotidien.

    Au rez-de-chaussée, vous découvrirez une cuisine semi-équipée, un salon chaleureux, une salle à manger conviviale, une buanderie ainsi qu’une salle de bain.

    Le premier étage accueille quatre chambres, idéales pour une famille ou pour aménager un bureau ou une chambre d’amis.

    À l’extérieur, vous profiterez d’une terrasse et d’un jardin orienté à l’est, parfaits pour savourer le soleil du matin et les belles journées.

    La maison dispose également de caves et d’un grenier aménageable.

    Le bien est à rafraîchir selon vos goûts, offrant ainsi l’opportunité de le personnaliser entièrement et d’en faire un lieu de vie à votre image. Côté technique : toiture en bon état en tuiles en terre cuite, façade en ardoise, châssis PVC simple et double vitrage, compteur électrique bi-horaire, chauffage au gaz (bonbonnes) et raccordement à l’égout. Surface habitable : ± 150 m² 

    -> Une belle opportunité pour les amateurs d’espace et de projets, à découvrir sans tarder !

    Vous souhaitez visiter ce bien ?

    Nos coordonnées
    Immobilière Thonnard & Trinon
    Nos horaires

    Données générales

    • Prix 198 000 €
    • Ville Goé
    • Catégorie Maison
    • Status de la transaction Vendu
    • Etat du batiment À rénover
    • Date de construction 1930
    • Orientation du bâtiment sud-ouest
    • Revenu cadastral 413 €

    Configurations

    • Nombre de chambres 4
    • Nombre de salles de bains 1
    • Jardin Oui
    • Parking Oui
    • Cave Oui
    • Superficie totale 151
    • Superficie terrain 348
    • Superficie jardin 227
    • Superficie salle à manger 11,90
    • Superficie cuisine 14,21
    • Superficie buanderie 12,69
    • Superficie chambre 1 14,48
    • Superficie chambre 2 13,91
    • Superficie chambre 3 14,48
    • Superficie chambre 4 12,49

    Données énergétiques

    • Classe énergétique PEB
    • PEB No 20181018019709
    • E spec 717 kWh/m²/an
    • E totale 113473 kWh/an
    • Emission de CO2 299 Kg/CO2/an
    • Type de chauffage accumulateurs électriques

    Documents

    Localisation

    17 Rue Gaspard Oger 4834 Goé

    Vous souhaitez visiter ce bien ?

    Nos coordonnées
    Immobilière Thonnard & Trinon
    Nos horaires
    7236391_75741332.jpg

    Demandez une visite pour ce bien

    Vos coordonées
    Informations supplémentaires (non obligatoire)