Appartement À vendre

4950 Waimes
110 000 €
À vendre
Facebook
WhatsApp

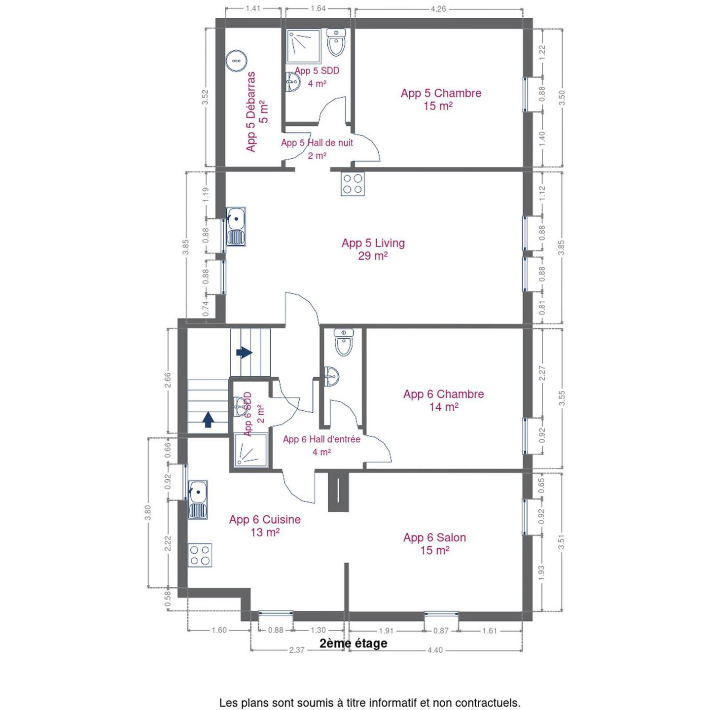
    À vendre dans le centre du village de Robertville: appartement 1 chambre.

    Situé au 2e étage d’un immeuble partiellement rénové, cet appartement cosy de taille agréable est idéal pour un jeune couple ou une personne seule.
    Actuellement loué.

    Composition: hall d’entrée commun
    Appartement: entrée, salle de douche, toilette séparée, cuisine semi équipée, salon et une grande chambre.

    Techniques: compteurs individuels, chauffage central au mazout (chaudière commune avec décompteur), double vitrage, isolation toiture et murs, tout à l’égout.

    PEB C: 20250324030020

    Informations complémentaires et visite via info@immo-tt.be ou au 080 78 50 37.

    Vous souhaitez visiter ce bien ?

    Nos coordonnées
    Immobilière Thonnard & Trinon
    Nos horaires

    Données générales

    • Prix 110 000 €
    • Référence 6823269
    • Ville Waimes
    • Catégorie Appartement
    • Status de la transaction À vendre
    • Etat du batiment À rafraîchir

    Configurations

    • Nombre de chambres 1
    • Nombre de salles de bains 1
    • Parking Oui
    • Superficie totale 48
    • Superficie séjour 15,42
    • Superficie cuisine 13,44
    • Superficie chambre 1 14,05

    Données énergétiques

    • Classe énergétique PEB
    • PEB No 20250324030020
    • E spec 234 kWh/m²/an
    • E totale 13222 kWh/an
    • Type de chauffage gaz (chau. centr.)

    Documents

    Localisation

    49 Rue Centrale 4950 Waimes

    Vous souhaitez visiter ce bien ?

    Nos coordonnées
    Immobilière Thonnard & Trinon
    Nos horaires
    7236450_73374378.jpg

    Demandez une visite pour ce bien

    Vos coordonées
    Informations supplémentaires (non obligatoire)