Appartement À vendre

4950 Waimes
110 000 €
À vendre
Facebook
WhatsApp

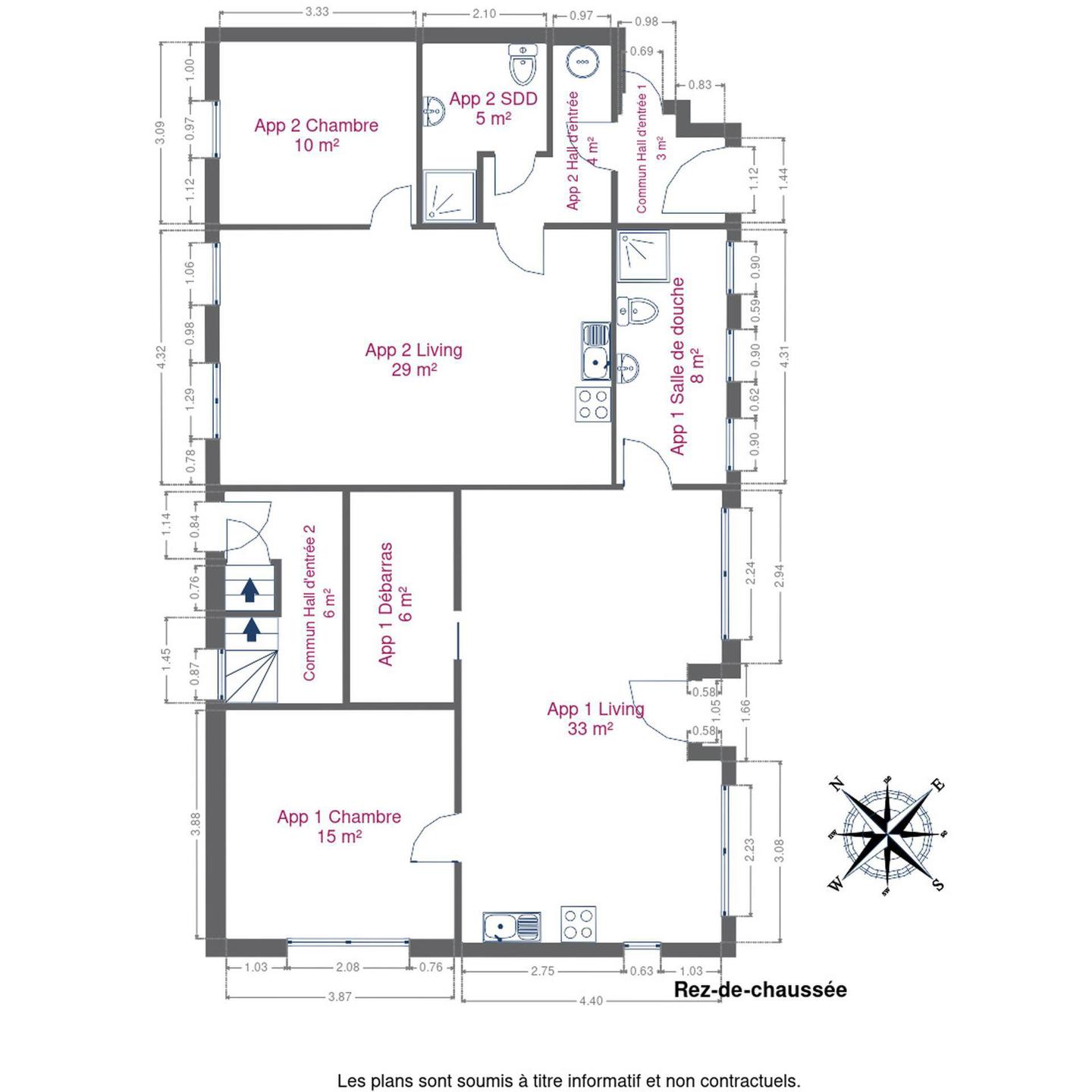
    Appartement 1 chambre – Rez-de-chaussée
    Cet appartement d’une chambre offre un espace de vie fonctionnel, idéal pour un premier achat ou un investissement.

    Il se compose de :
    Une chambre 
    Une salle de bain avec douche et WC
    Un living ouvert sur une cuisine équipée et une salle à manger, pour une surface totale d’environ 29 m²
    Un hall d’entrée pratique

     À savoir :
    Boiler individuel pour l’eau chaude
    Chauffage central au mazout avec chaudière commune
    Double vitrage partiel, toiture et façade isolées
    Immeuble raccordé au tout à l’égout

    PEB D : 20250417043385

    Informations et visites via info@immo-tt.be ou au 080 78 50 37

    Vous souhaitez visiter ce bien ?

    Nos coordonnées
    Immobilière Thonnard & Trinon
    Nos horaires

    Données générales

    • Prix 110 000 €
    • Référence 6823240
    • Ville Waimes
    • Catégorie Appartement
    • Status de la transaction À vendre
    • Etat du batiment À rafraîchir

    Configurations

    • Nombre de chambres 1
    • Nombre de salles de bains 1
    • Parking Oui
    • Cave Oui
    • Superficie totale 49
    • Superficie séjour 28,72
    • Superficie chambre 1 10,28

    Données énergétiques

    • Classe énergétique PEB
    • PEB No 20250417043385
    • E spec 296 kWh/m²/an
    • E totale 17651 kWh/an
    • Type de chauffage gaz (chau. centr.)

    Documents

    Localisation

    49 Rue Centrale 4950 Waimes

    Vous souhaitez visiter ce bien ?

    Nos coordonnées
    Immobilière Thonnard & Trinon
    Nos horaires
    7236469_73374629.jpg

    Demandez une visite pour ce bien

    Vos coordonées
    Informations supplémentaires (non obligatoire)